59th zagreb salon
of architecture
and urbanism

Art Pavilion
in Zagreb
15–31/12/2024

59. zagrebački
salon arhitekture
i urbanizma

Hotel Emotheo

Imotski / 2022. / Ante Nikša Bilić

Hotel Emotheo

About project

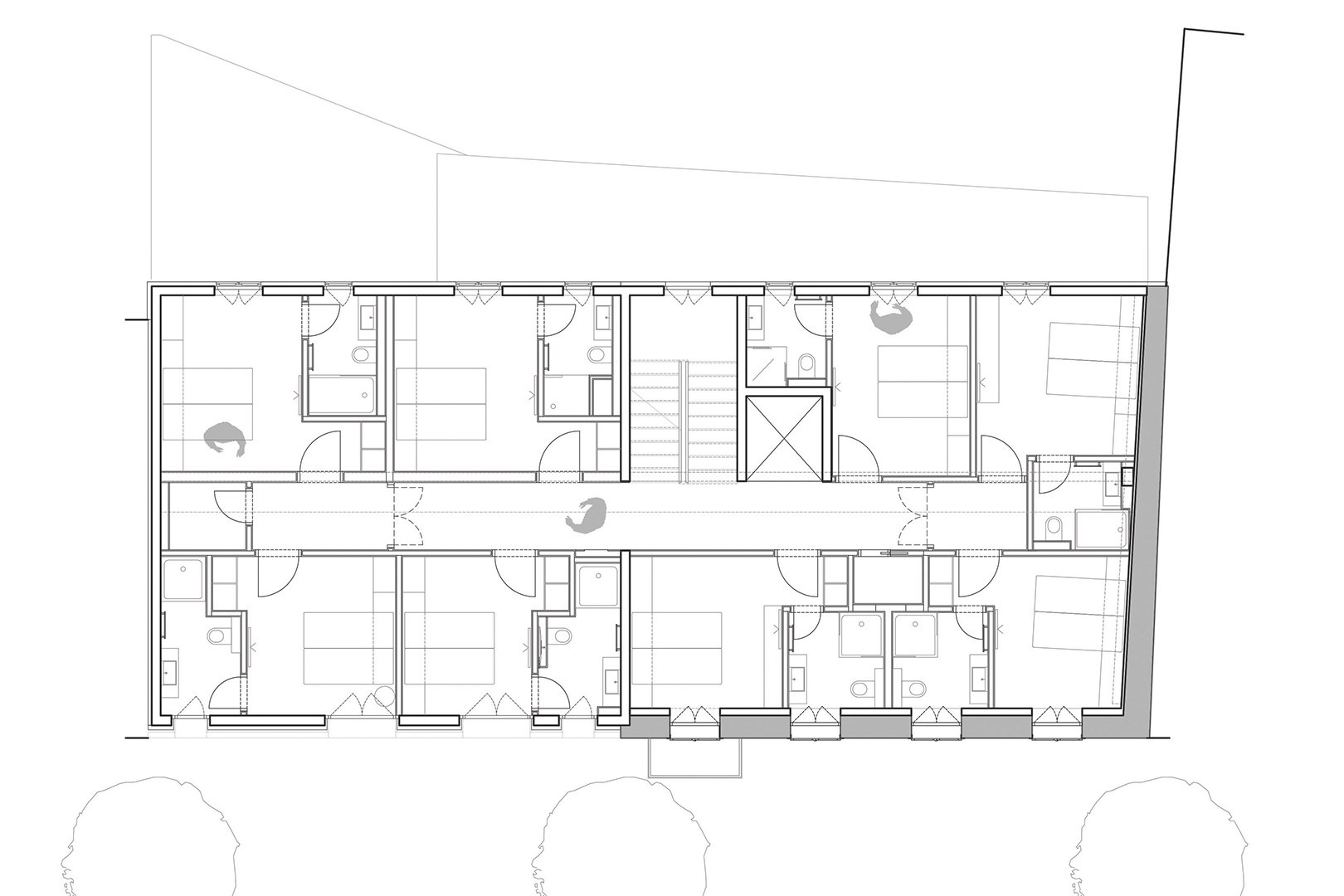
'Imotski has seven gates. The gate of Neretva. The gate of Cetina. The gate of Bosnia. The gate of the sea. The gate of the sky. The gate of the earth. And the gate of the mother. Through the seven gates, everything passes to and fro: the sun and the moon, flocks of migratory birds, stars, winds and clouds, wolves and vipers, lightning and fairies, earthly and underground waters. People come and go.' (Petar Gudelj, Path to Imotski). The fundamental idea of this project is connection in every sense: connection to the past, between public and private, between color and achromatism...

About authors

Ante Nikša Bilić is an architect and publicist born in Zagreb. He is a co-founder of the magazine Oris. After completing the Civil Engineering School in Split and the Faculty of Architecture in Zagreb, he founded Studio ANTEMURALES in 2004, where he continues his practice to this day.

Images

Project ID
785
Location
Imotski
Year
2022.
Author
Ante Nikša Bilić
Office
STUDIO ANTEMURALES
Collaborators
Sunčica Mastelić Ivić
Valentina Krekić
Anamarija Šimunović
Jelena Grbavac
Client
JP IMMOBILIEN d.o.o.
Type of project
Commissioned work