59th zagreb salon
of architecture
and urbanism

Art Pavilion
in Zagreb
15–31/12/2024

59. zagrebački
salon arhitekture
i urbanizma

3R

Lovran / 2020.-2021. / Jadranka Kruljac Polak / Nikola Polak

3R

About project

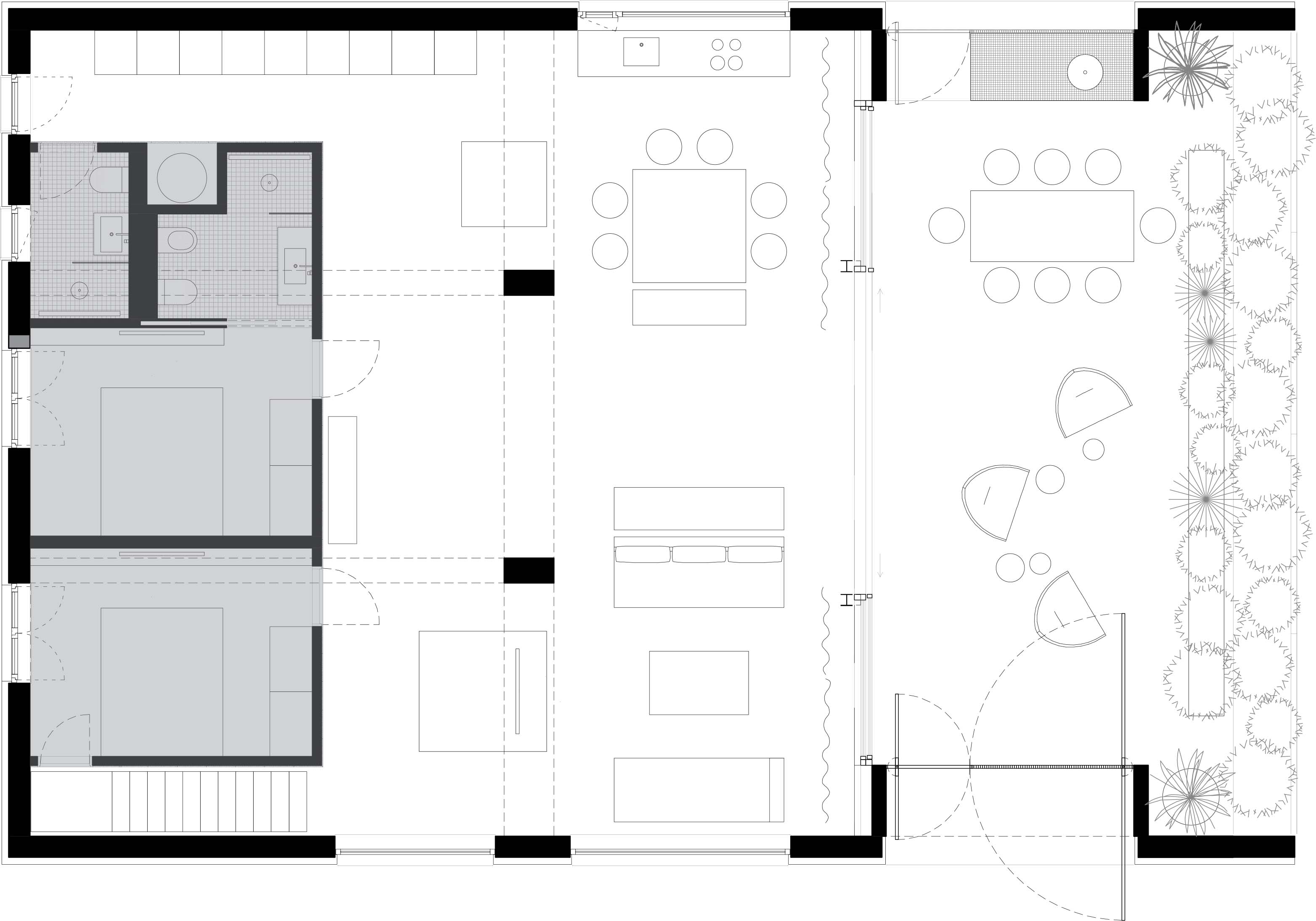
The old Lovran workshop for servicing ship engines is a three-part enfilade of introverted rooms accessed through three service openings. By replacing removed transverse walls, ceiling slabs, and the front facade with laminated beams, the old structure becomes the 'tool' for introducing the new. The unified space conforms to the breaks of the three roof planes, giving the gables their intriguing dynamics. The residential tripartite design places a night box within an extroverted living area, separated by a full glass screen from a deep terrace—and the Kvarner Bay.

About authors

Jadranka Kruljac Polak graduated from the School of Applied Arts and the Faculty of Architecture in Zagreb in 1990. Nikola Polak graduated from the Faculty of Architecture in Zagreb (1975), earned an MIT degree (1979), and completed his doctorate (1994).

Images

Project ID
714
Location
Lovran
Year
2020.-2021.
Author
Jadranka Kruljac Polak / Nikola Polak
Office
Blos d.o.o.
Project team
Mateo Biluš, dia akfz studio doo
Marija Šarac, dig Statički projektni ured G&F doo
Mihajlo Šprem, gt Šprem-projekt doo
Alen Farago, die ets farago doo
Tomislav Vučinić Termoprojekting doo
Nino Kušter Ortoforma doo
Type of project
Commissioned work