59th zagreb salon
of architecture
and urbanism

Art Pavilion
in Zagreb
15–31/12/2024

59. zagrebački
salon arhitekture
i urbanizma

Croatian Natural History museum

Zagreb / 2014.-2024. / Radionica arhitekture + Vanja Ilić arhitektura

Croatian Natural History museum

About project

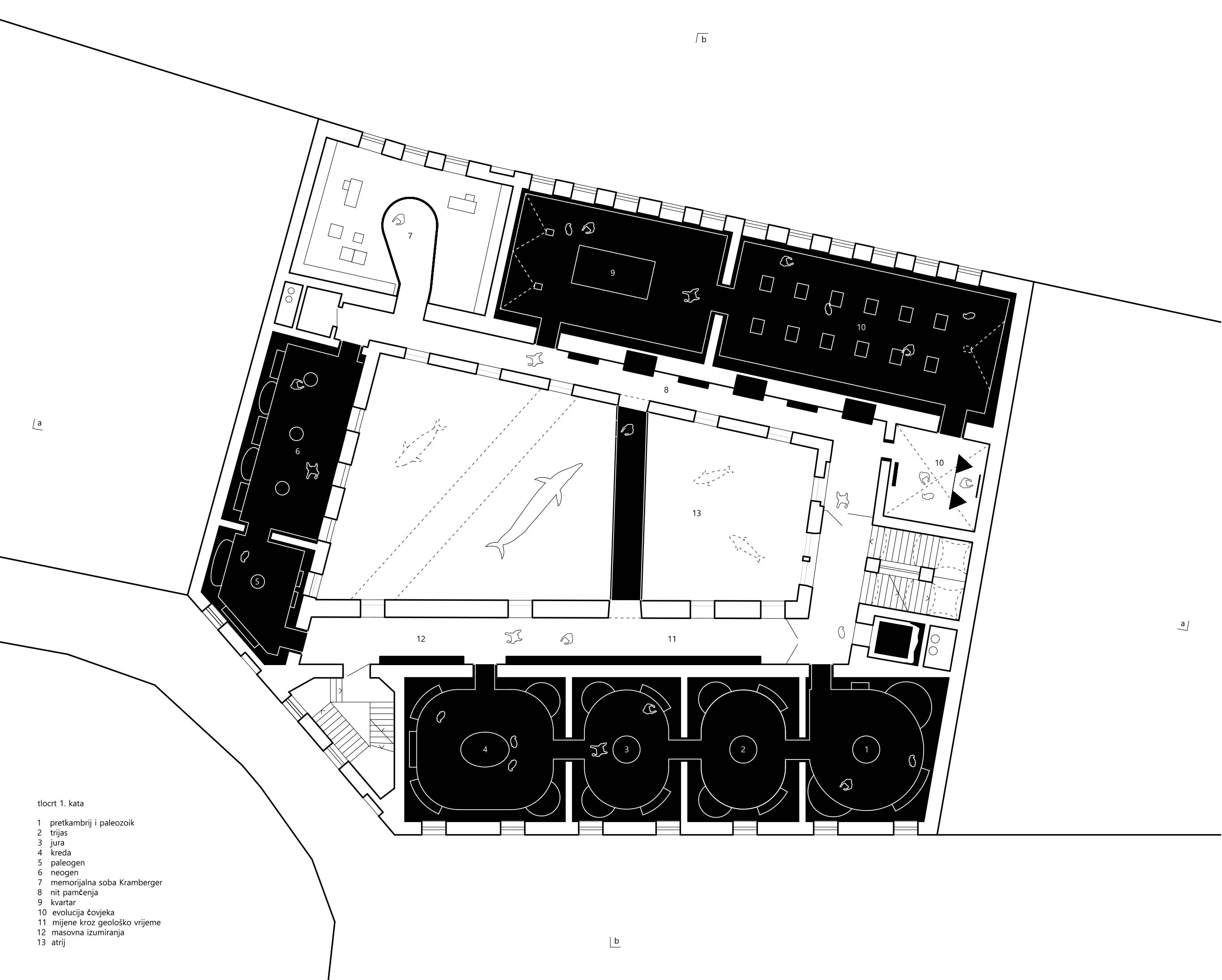
The Croatian National History Museum is located in the Amadeo Palace in Zagreb's Upper Town. The project is developed through a nuanced interplay of historical layers and contemporary interventions, driven by the need to renovate and expand the exhibition space. It encompasses reconstruction, extension, and a permanent museum exhibition, including the roofing of the atrium, the introduction of new communication pathways via bridges, deepening the underground level with a new multimedia hall, and an underground extension for temporary exhibitions.

About authors

The Radionica Arhitekture office was founded in 2004. The Vanja Ilić Arhitektura office was founded in 2004.

Images

Project ID
880
Location
Zagreb
Year
2014.-2024.
Author
Radionica arhitekture + Vanja Ilić arhitektura
Office
Radionica arhitekture + Vanja Ilić arhitektura
Project team
Projektni tim: RA: Fani Frković, Antonio Jakubek, Tena Knežević, Marin Mišan, Klara Nikšić, Jelena Prokop, Ana Rako, Goran Rako, Ana Ranogajec Knežević, Josip Sabolić, Ivana Stanić
Projektni tim VIA: Vanja Ilić, Dominik Lovrečić, Marijana Gradečak, Bojan Pepeonik, Tena Petrović.
Client
Hrvatski prirodoslovni muzej
Type of project
Naručeni rad