59th zagreb salon
of architecture
and urbanism

Art Pavilion
in Zagreb
15–31/12/2024

59. zagrebački
salon arhitekture
i urbanizma

Memorial Collection: Lipa Remembers and Lives

Lipa / 2013.-2015. / Damir Gamulin / Antun Sevšek

Memorial Collection: Lipa Remembers and Lives

About project

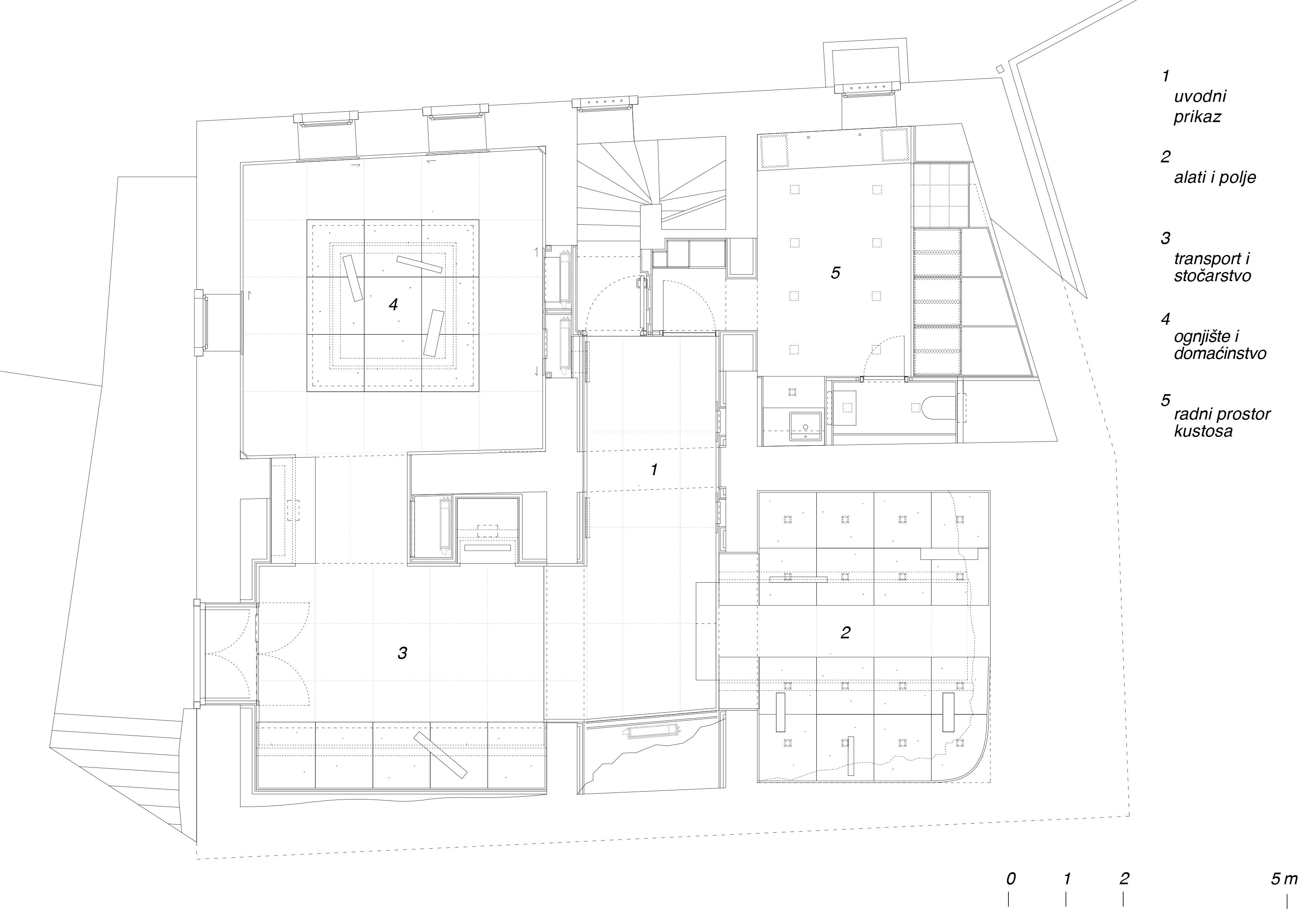
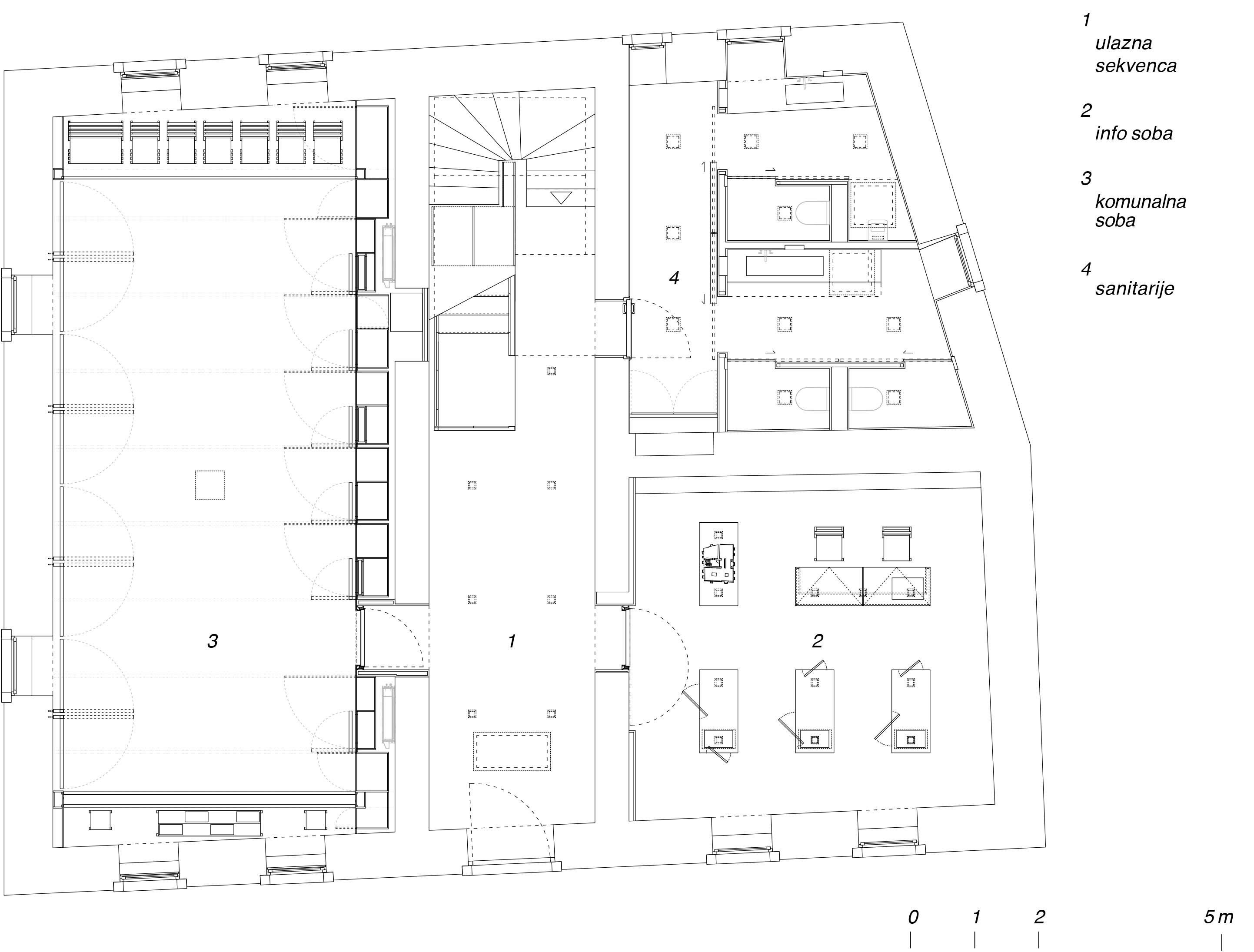
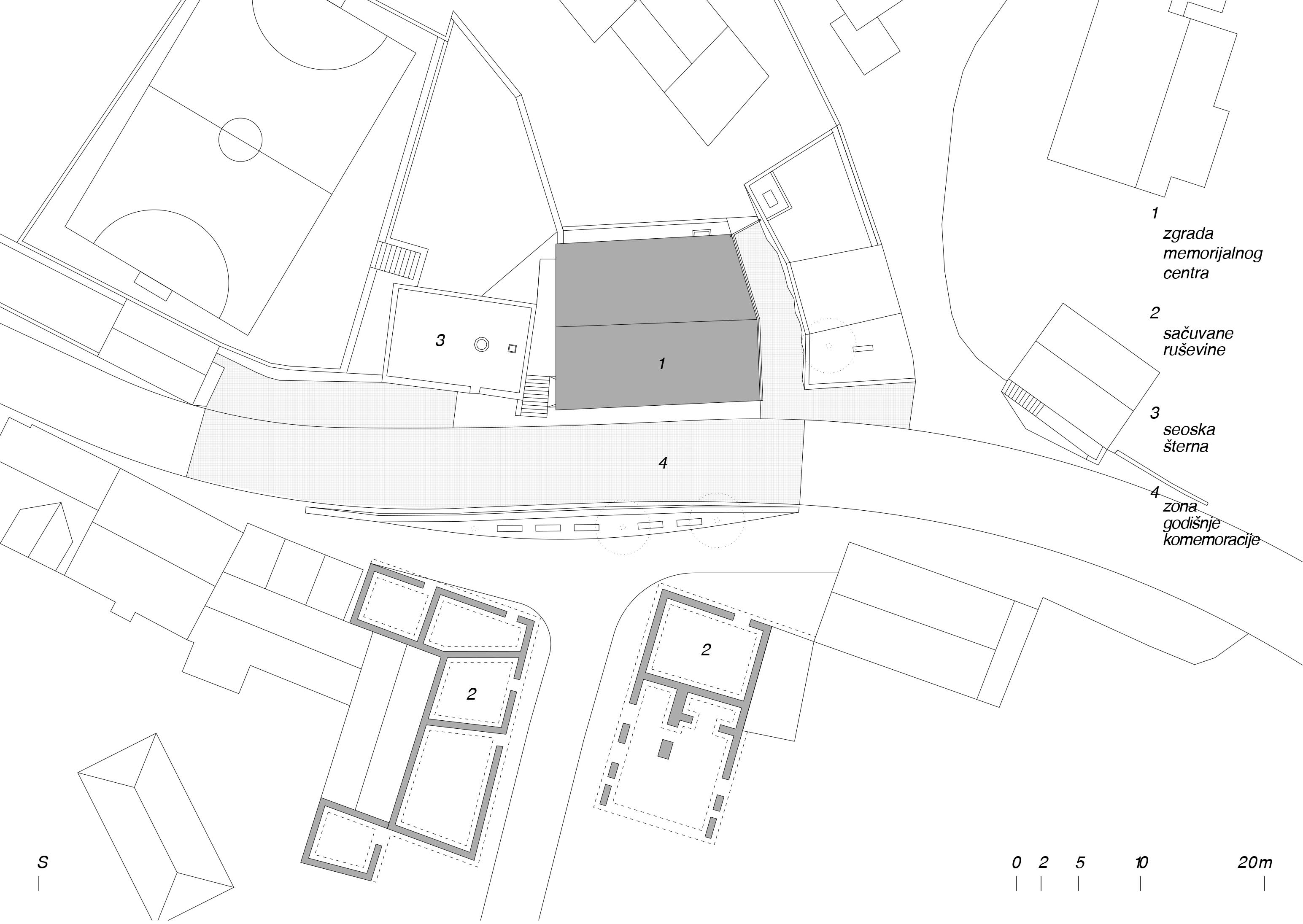
The Memorial Center preserves the memory of April 30, 1944, when the village of Lipa was entirely destroyed, looted, and all 269 residents present were killed. It is housed in the former primary school and post office building. The design eliminates the distinction between spatial solutions, museum-display furniture, final articulation of museological content, graphic design, and exhibit organization. The spatial framework is treated as an integral part of the exhibition, while display elements are treated as building blocks of spatial sequences.

About authors

Organizirano oblikovanje is an interdisciplinary practice led by Damir Gamulin and Antun Sevšek. In addition to self-initiated research projects, it engages in graphic design, spatial signage, exhibition setups, public spaces, cultural infrastructure, and heritage revitalization.

Images

Project ID
706
Location
Lipa
Year
2013.-2015.
Author
Damir Gamulin / Antun Sevšek
Office
Organizirano oblikovanje
Project team
Irena Bakić autorska suradnja
Jure Živković
Hana Grebenar
Melita Čavlović
Tea Perinčić autorica muzeološkog postava / PPMHP
Ivo Mileusnić autor muzeološkog postava / PPMHP
Vana Gović autorica muzeološkog postava / PPMHP
Ivana Šarić Žic autorica muzeološkog postava / PPMHP
Ranko Starac autor muzeološkog postava / PPMHP
Collaborators
Saša Relić
Ranko Skansi svjetlo-dizajn
Viktor Fabris optika
Miodrag Gladović audio-vizualni sustavi, multimedija / AVC
Nikica Klobučar zvučna naracija
Hrvoje Radnić programiranje i dizajn zvuka
Dejan Gotić računalne animacije
Rikard Blažičko oblikovanje maketa
Luka Biondić 3d print modela / IZIT
Igor Crnković zračni snimci
Nives Sertić video anotacija i oblikovanje multimedije etnografskog postava
Andrej Marković konstrukcija / Ultrastudio
Ranko Bihler vodovod, odvodnja i strojarske instalacije / Pro-ing
Armin Bogunović elektroinstalacije / Telemetrija
Melita Kanceljak Marelić zaštita od požara i zaštita na radu
Danica Maljavac suradnica na ostvarenju postava
Robert Leš fotografije
Client
Općina Matulji
Primorsko-goranska županija
Ministarstvo kulture Republike Hrvatske
Type of project
Naručeni rad