59th zagreb salon
of architecture
and urbanism

Art Pavilion
in Zagreb
15–31/12/2024

59. zagrebački
salon arhitekture
i urbanizma

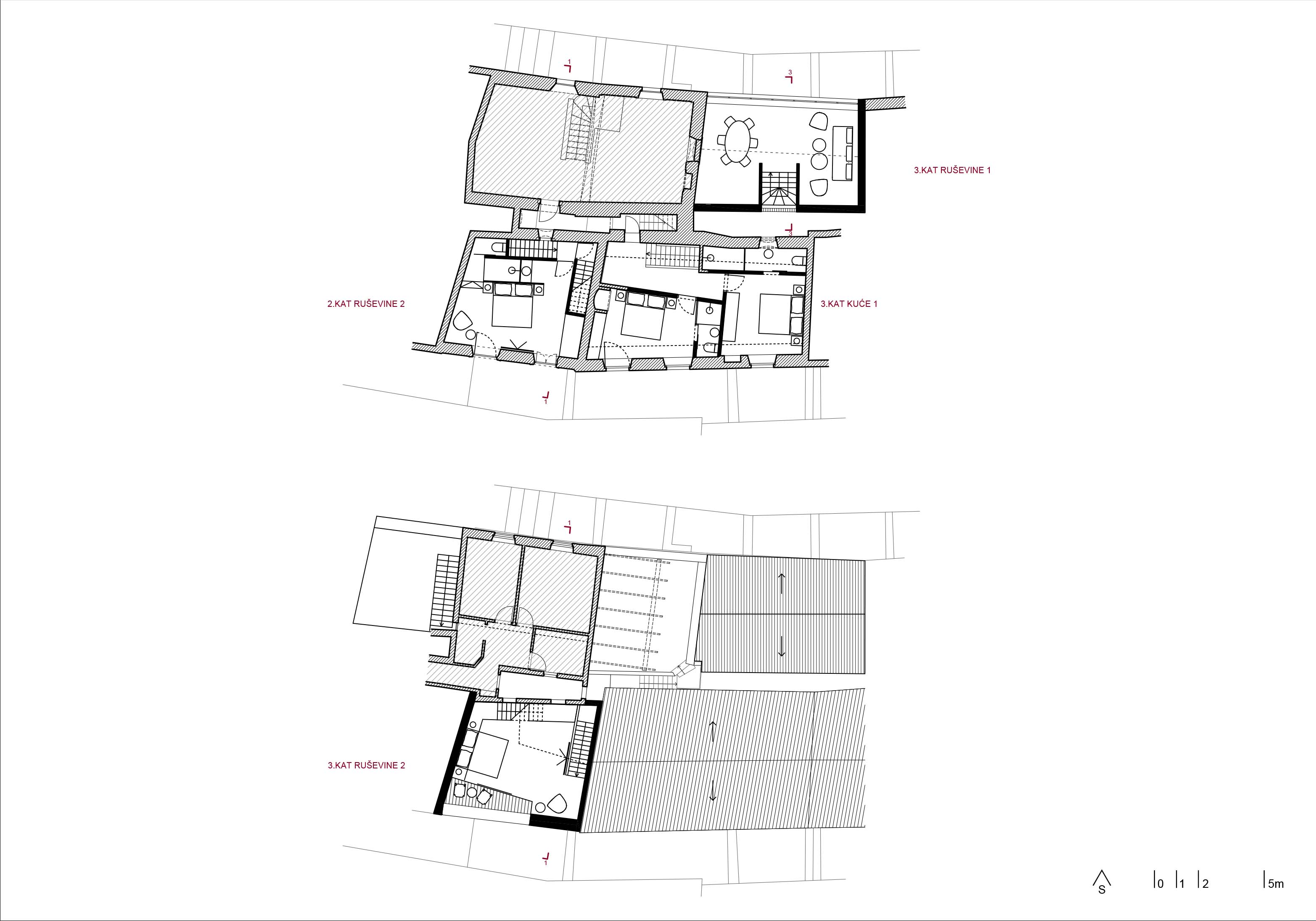
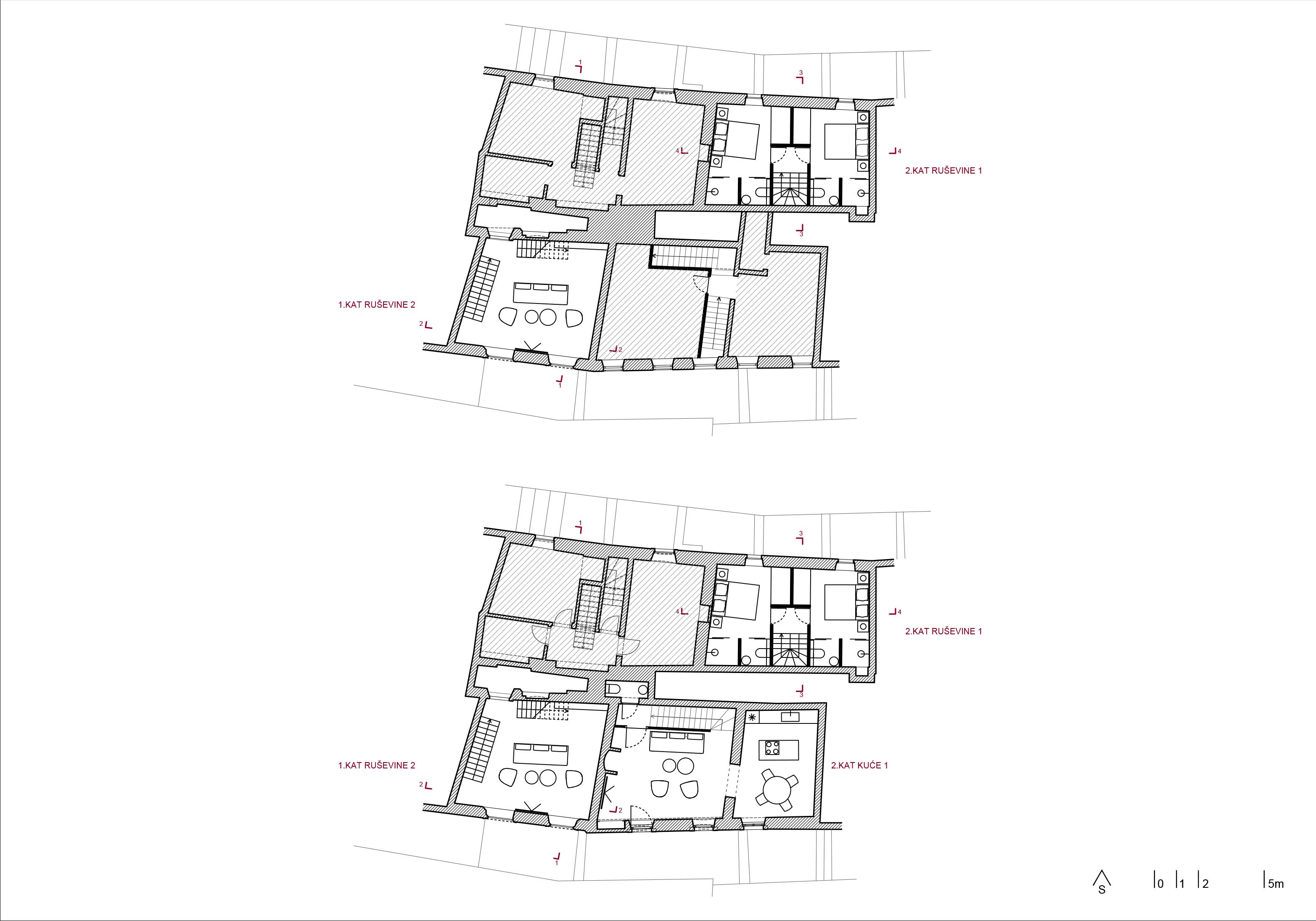
Reuse of Hollow Houses

Korčula / / IVANIŠIN. KABASHI. ARHITEKTI

Reuse of Hollow Houses

About project

Hollow houses—walls without ceilings or roofs—are a typical spatial element in Korčula. This project involves the reuse of two such ruins on opposite sides of a block and the adaptation of the upper levels of an adjacent house into three apartments, forming part of a dispersed hotel. Between them lies a cloaca. This is one of many iterations developed in collaboration with conservators and through negotiations with neighbors. The northern “Gothic” ruin has been completed with the addition of one level. The southern “Renaissance” ruin is still under construction and negotiation.

About authors

IVANIŠIN. KABASHI. ARCHITECTS was founded in 2003 by Krunoslav Ivanišin and Lulzim Kabashi. They have completed buildings of various functions and scales, won multiple competitions in Croatia and abroad, received the “Drago Galić” Award, and exhibited at the Venice Biennale.

Images

Project ID
833
Location
Korčula
Author
IVANIŠIN. KABASHI. ARHITEKTI
Client
Privatni
Type of project
Commissioned work