59th zagreb salon
of architecture
and urbanism

Art Pavilion
in Zagreb
15–31/12/2024

59. zagrebački
salon arhitekture
i urbanizma

Croatian Museum of Architecture – Črnomerec Brick Factory

Zagreb / 2023. / Ivan Čulo

Croatian Museum of Architecture – Črnomerec Brick Factory

About project

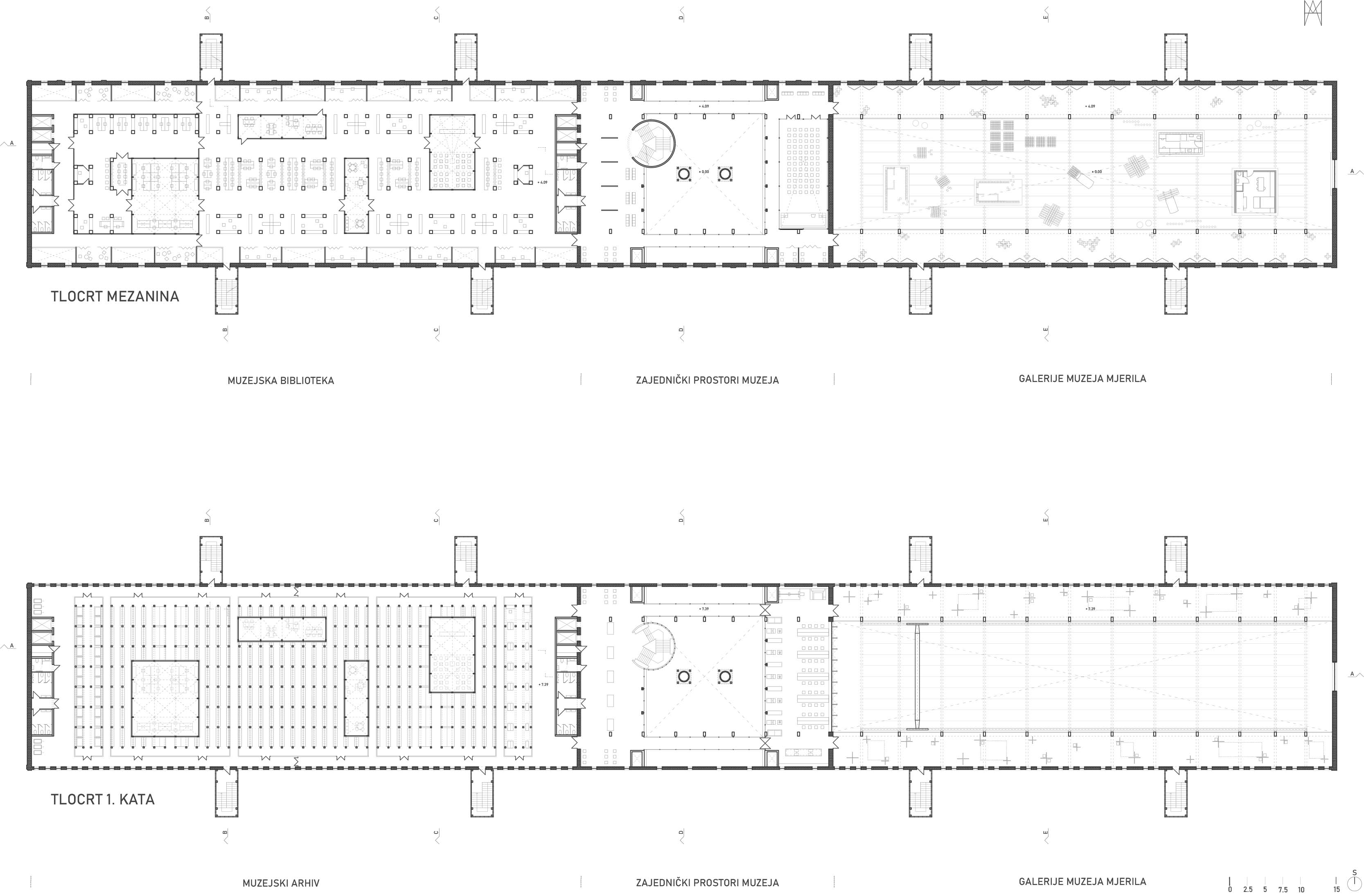
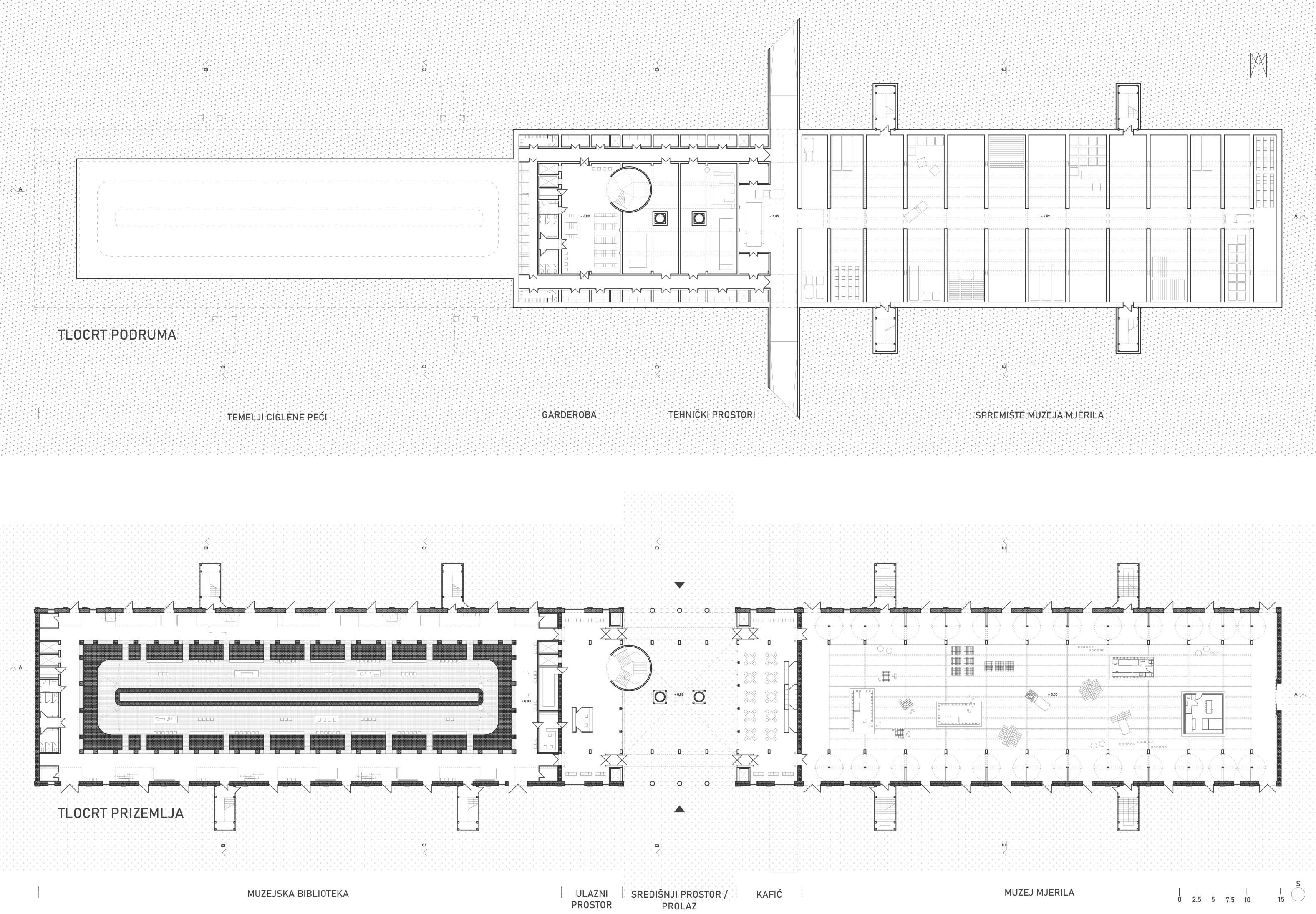
The Črnomerec brick factory, a machine for brick production now dominated by two circular kilns, transforms its purpose from an industrial plant to a factory of knowledge. The western wing retains its typical cross-section, housing a “classic” museum, while the eastern wing forms a new museum—the museum of scale. The emerged space tracks time and fosters an active dialogue between visitors and architecture, old and new. Exhibits in the eastern wing gradually migrate to the western, archival wing, establishing a reciprocal, circular relationship.

About authors

Ivan Čulo (Zagreb, 1997) graduated from the Faculty of Architecture in Zagreb in 2023. He attended two courses at the Academy of Fine Arts in Zagreb and participated in an accompanying exhibition. He is a recipient of the Technical Studio course award and the Rector’s Award for the Railway Station.

Images

Project ID
806
Location
Zagreb
Year
2023.
Author
Ivan Čulo
Project team
Ivan Čulo
Type of project
Thesis