59. zagrebački
salon arhitekture
i urbanizma

dijalozi / monolozi

Umjetnički paviljon
u Zagrebu
15–31/12/2024

59th zagreb salon
of architecture
and urbanism

Urania

Zagreb / 2017.-2019. / 3LHD

Urania

O projektu

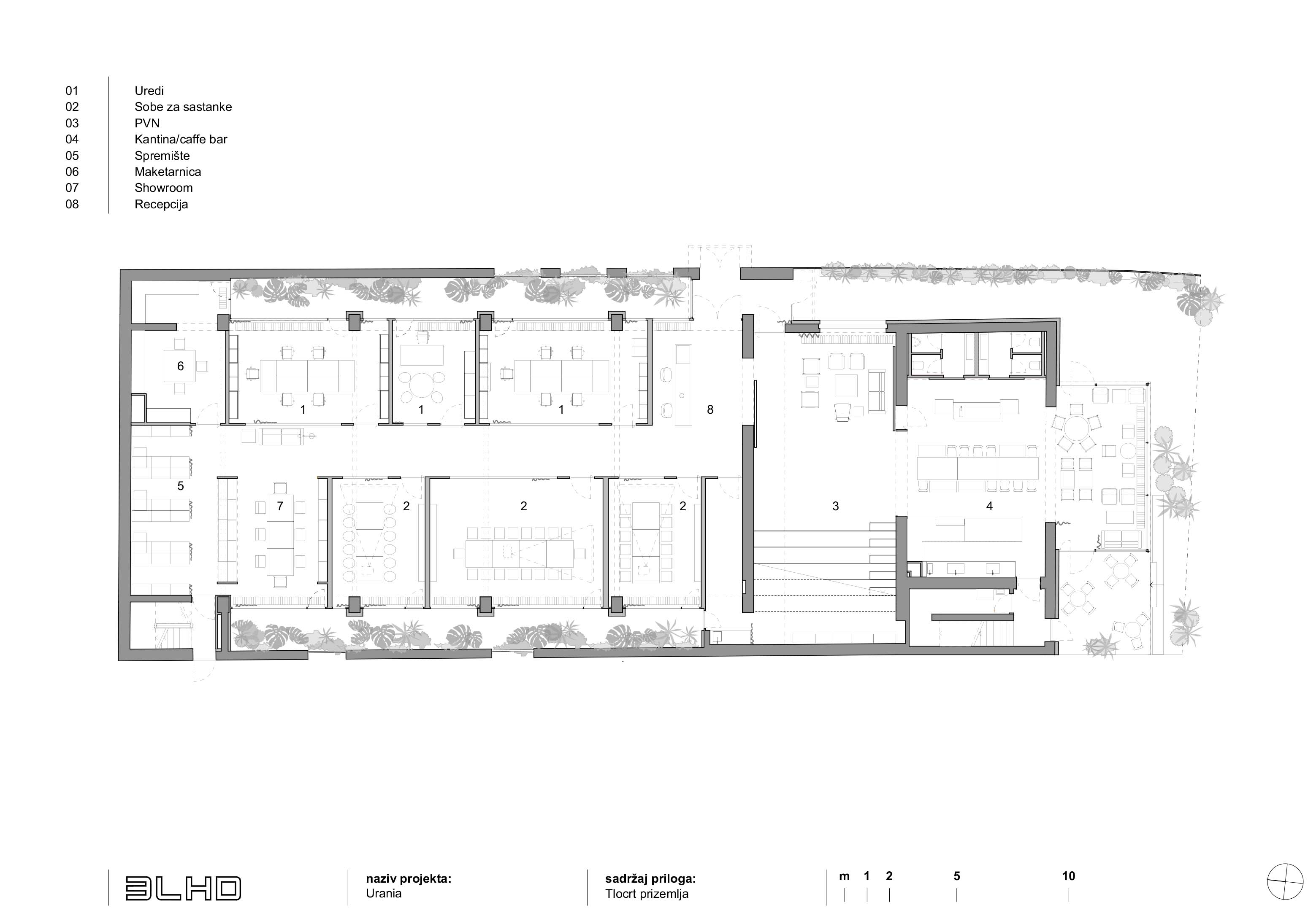
Projekt rekonstrukcije starog kina Urania iz 1939. u javni prostor različitih namjena i uredski prostor. Usprkos starosti, zgrada je imala dobre predispozicije za prilagodbu. Struktura je bila vrlo dobro očuvana, s potpornim stupovima, lukovima u velikoj dvorani i sitnorebrastim betonskim stropovima. U rekonstrukciji su zadržani postojeći volumeni: ulazni prostor i prateći uredi, veliki lobby i kinodvorana, dodan je novi ulazni stakleni volumen. Urania je mjesto susreta, prostor za brojna javna događanja.

O autoru / grupi

3LHD je arhitektonski ured usmjeren na integraciju različitih disciplina: arhitekture, urbanog i pejzažnog krajolika, dizajna i umjetnosti. U svome radu 3LHD neprekidno istražuje nove mogućnosti interakcije i integracije arhitekture, društva i pojedinca.

Prikazi

ID rada
829
Mjesto
Zagreb
Godina projekta
2017.-2019.
Autor
3LHD
Ured
Studio 3LHD
Projektni tim
Saša Begović
Marko Dabrović
Tatjana Grozdanić Begović
Silvije Novak
Paula Kukuljica
Dragana Šimić
Denis Hrvatin
Marijana Pivac
Davor Plavšić
Suradnici
Nives Krsnik Rister 3LHD
Mia Andrašević 3LHD
Branimir Turčić 3LHD
Jan Ružić 3LHD
Ivan Palijan Projekt konstrukcije
Mladen Stošić
Ivan Grgić Projekt strojarskih instalacija
Vladimir Paun Konzultant strojarskih instalacija
Maksim Carević Elaborat zaštite od požara
Roni Mahić Geodetski projekt
Ante Knez Geodetski projekt
Ninoslav Kušter Projekt svjetlotehnike
Natko Bilić Posebni projekti, fizika zgrade, projekt strojarskih instalacija
Mateo Biluš Konzultant fizika zgrade, detalji
Srđan Grujić Projekt vodovoda, odvodnje i hidrantske mreže
Zlatan Novak Snimak postojećeg stanja, point cloud
Kaja Šprljan Bušić Projekt krajobraznog uređenja
Ines Hrdalo Projekt krajobraznog uređenja
Zlatko Kramarić Projekt navodnjavanja
Lucija Ivas Nadzor (arhitektura)
Svrha nastanka
Samoinicirani rad