59. zagrebački
salon arhitekture
i urbanizma

dijalozi / monolozi

Umjetnički paviljon
u Zagrebu
15–31/12/2024

59th zagreb salon
of architecture
and urbanism

Zagrebački Plesni Centar

Zagreb / 2003.-2008. / 3LHD

Zagrebački Plesni Centar

O projektu

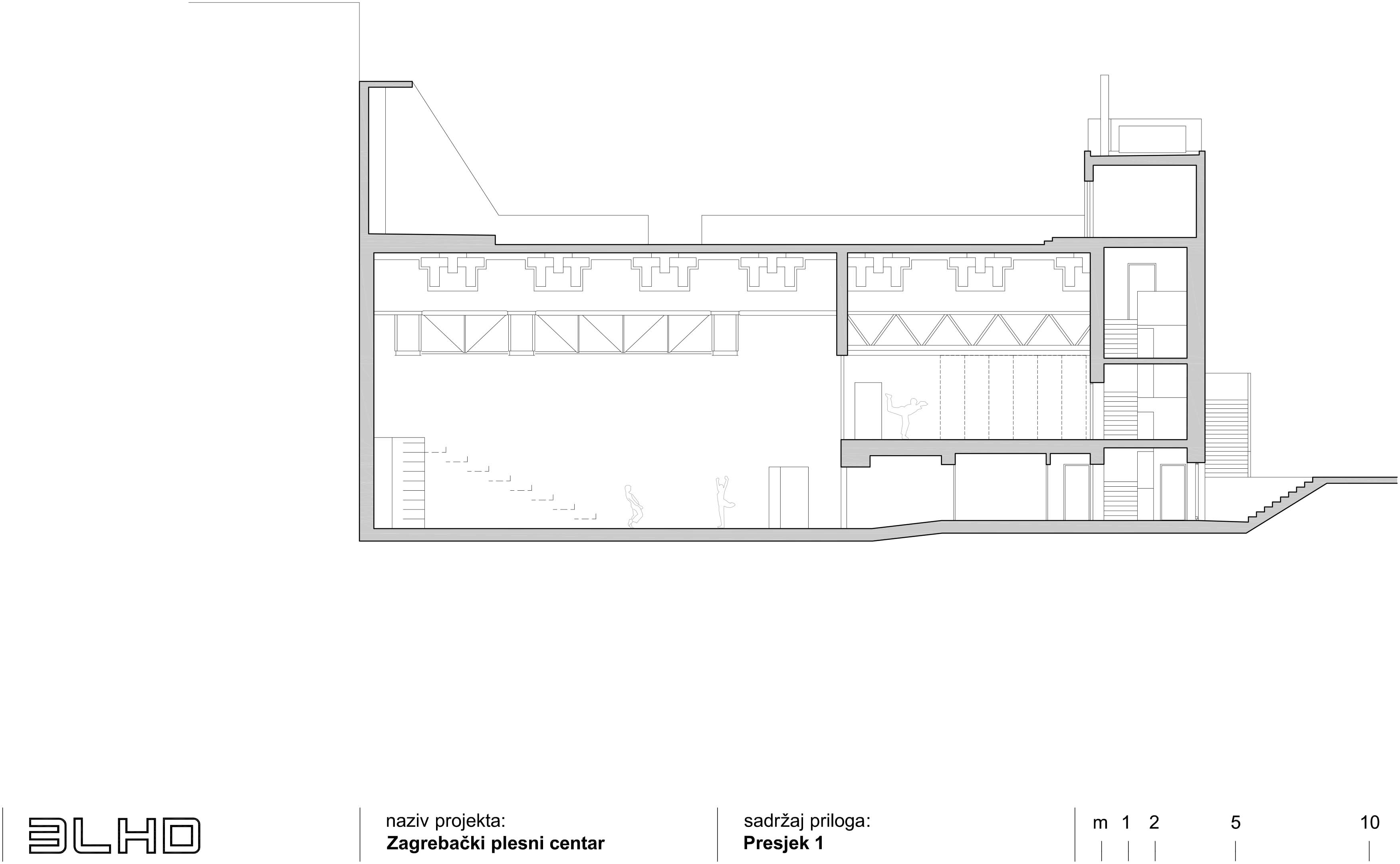
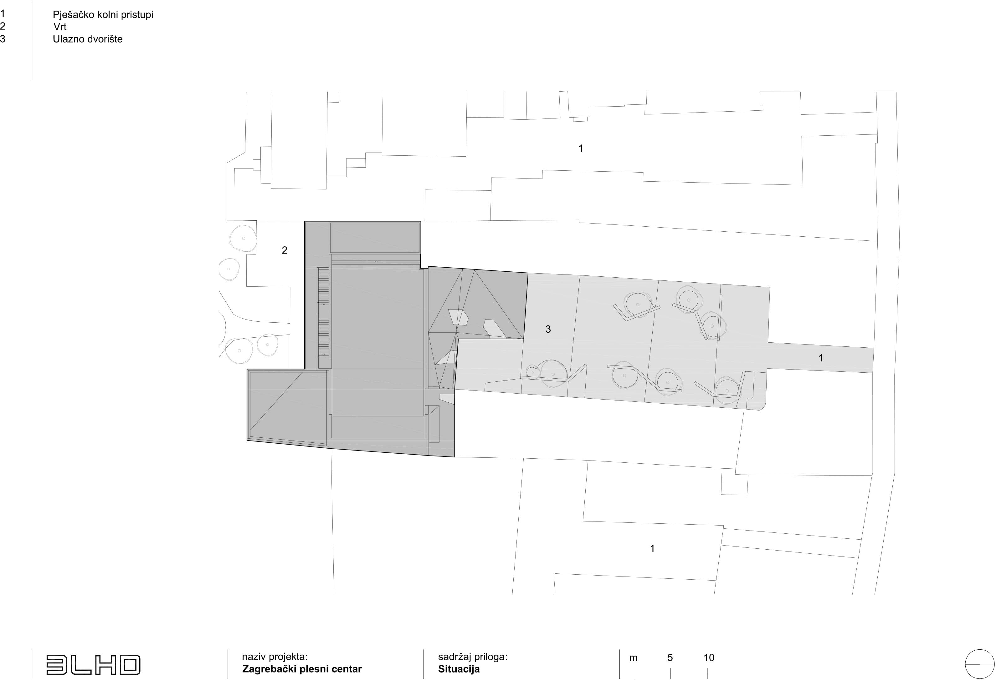
Rekonstrukcija i prenamjena starog kina Lika u Plesni Centar dio je urbane transformacije starih napuštenih kina u Zagrebu. Program je smješten u staru ljušturu bivšeg kina s tri nove multifunkcionalne dvorane – velika s mogućnošću održavanja predstava i dvije dvorane za probe. Novi arhitektonski element/volumen, ulazno multifunkcionalno predvorje, u funkciji je okupljanja i komunikacije između prostora. Krovna terasa važan je element očuvanja i obnove otvorene pozornice na krovu.

O autoru / grupi

3LHD je arhitektonski ured usmjeren na integraciju različitih disciplina: arhitekture, urbanog i pejzažnog krajolika, dizajna i umjetnosti. U svome radu 3LHD neprekidno istražuje nove mogućnosti interakcije i integracije arhitekture, društva i pojedinca.

Prikazi

ID rada
817
Mjesto
Zagreb
Godina projekta
2003.-2008.
Autor
3LHD
Ured
Studio 3LHD
Projektni tim
Saša Begović
Marko Dabrović
Tatjana Grozdanić Begović
Silvije Novak
Jasminka Jug
Zorislav Petrić
Željko Mohorović
Dijana Vandekar
Marin Mikelić
Suradnici
Berislav Medić UPI-2M, projekt konstrukcije
Hrvoje Mihal UPI-2M, projekt konstrukcije
Mateo Biluš B.M.P. d.o.o., fizika zgrade/detalji
Milan Carević Inspekting,konzultant zaštite od požara
Igor Šundov Rena prom, projekt termotehničkih instalacija – strojarske instalacije
Mario Josipović projekt termotehničkih instalacija – strojarske instalacije
Nenad Šutevski Vodotehnika, projekt vodovoda i odvodnje
Radovan Tomšić RP studio, projekt elektroinstalacija
Renato Majcunić MR konzalting, projekt elektroinstalacija
Kaleb inženjering projekt sprinkler instalacije
Slaven Delalle konzultant
Janko Velnić 3D vizualizacije
Lana Cavar
Linked by Air (Tamara Maletić, Dan Michaelson) dizajn signalizacijskog sustava i grafike u prostoru
I-GLE dizajn tkanina
Naručitelj
Grad Zagreb
Svrha nastanka
Naručeni rad