59. zagrebački
salon arhitekture
i urbanizma

dijalozi / monolozi

Umjetnički paviljon
u Zagrebu
15–31/12/2024

59th zagreb salon
of architecture
and urbanism

Rekonstrukcija i dogradnja Osnovne škole Ksavera Šandora Gjalskoga u Zagrebu

Grad Zagreb / 2007. - 2022. / Zoran Boševski / Boris Fiolić / Željko Golubić

Rekonstrukcija i dogradnja Osnovne škole Ksavera Šandora Gjalskoga u Zagrebu

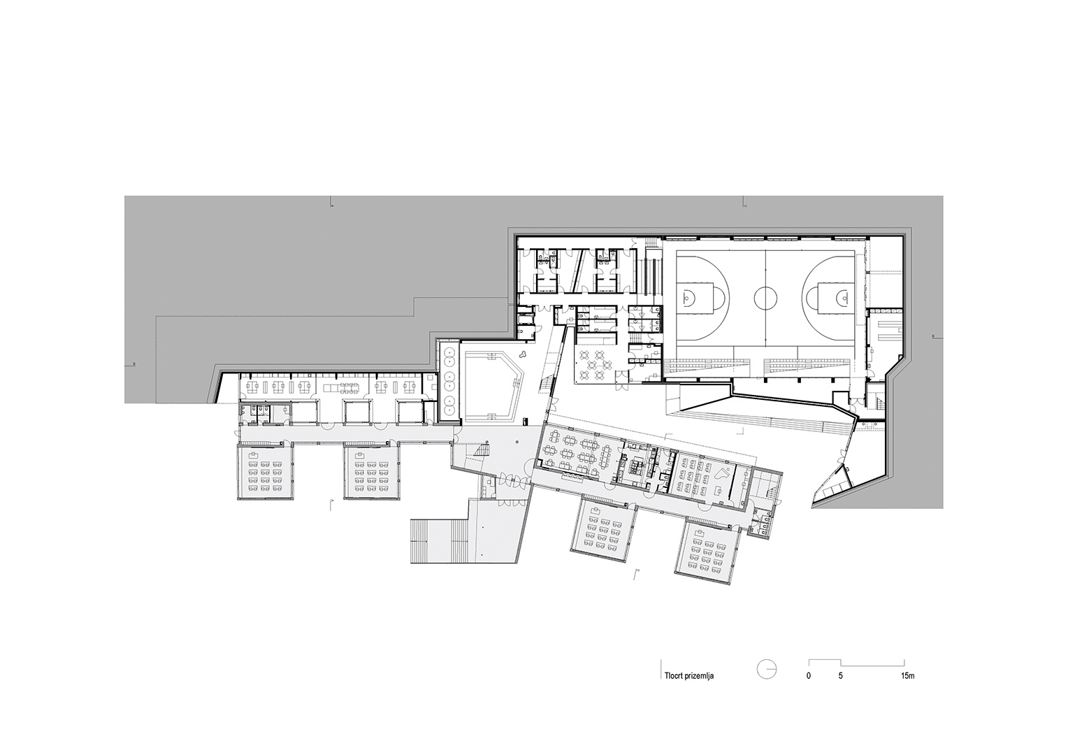
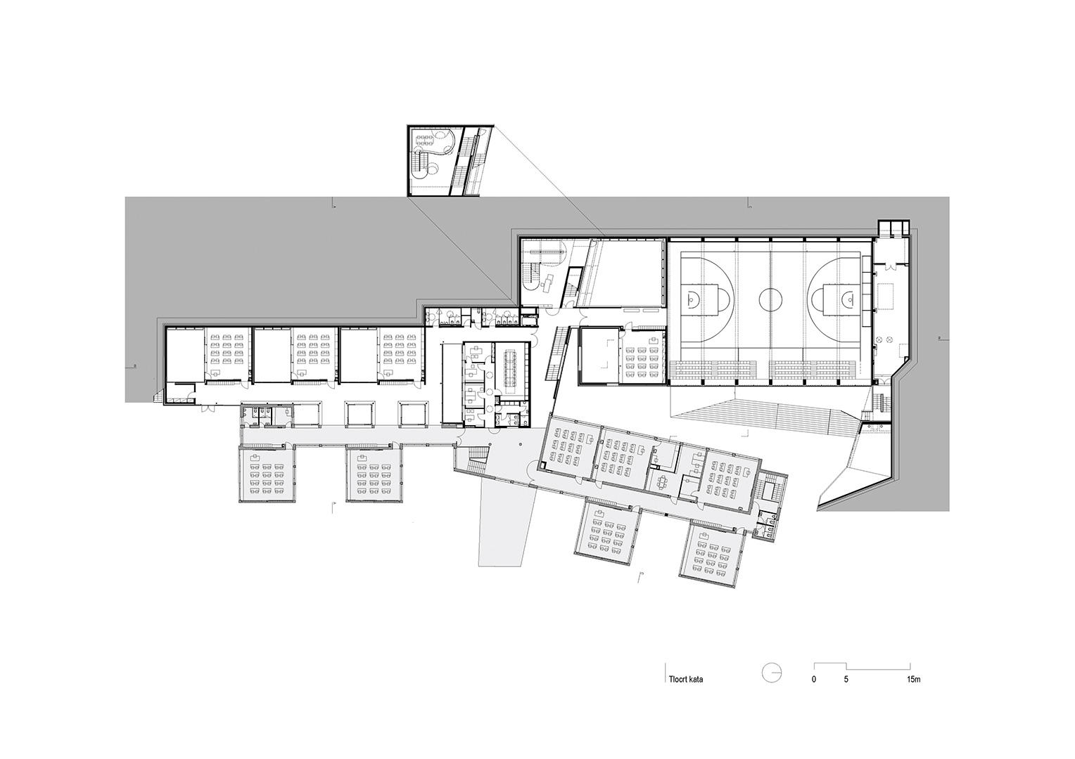
O projektu

Osnovna škola K. Š. Gjalskog izgrađena je 1961. godine prema projektu arhitekta Željka Žlofa. Projekt je rezultat prvonagrađenoga natječajnog rada iz 2007. kojim je bilo potrebno ostvariti rekonstrukciju postojeće škole te dograditi četiri učionice, knjižnicu i dvodijelnu sportsku dvoranu s pratećim sadržajima. Na zahtjevnoj lokaciji sa strmom padinom, dogradnja se priljubljuje uz postojeću školu i ukapa u teren. Slijedeći prostornu logiku postojeće škole, zadani program organizira se oko niza atrija, svjetlika i dvorišta kako bi se stvorio suvremeni edukativni prostor.

O autoru / grupi

Zoran Boševski (1959.) diplomirao je na Af-u u Zagrebu 1984. godine. Vodio je ured STUDIO BF. Sad vodi STUDIO OWL. Boris Fiolić (1959.–2018.) diplomirao je na Af-u u Zagrebu 1984. godine. Vodio je ured STUDIO BF. Željko Golubić (1980.) diplomirao je na Af-u u Zagrebu 2006. godine. Vodi vlastiti ured

Prikazi

ID rada
826
Mjesto
Grad Zagreb
Godina projekta
2007. - 2022.
Autor
Zoran Boševski / Boris Fiolić / Željko Golubić
Ured
STUDIO BF
Naručitelj
Grad Zagreb
Svrha nastanka
Natječajni rad