59. zagrebački
salon arhitekture
i urbanizma

dijalozi / monolozi

Umjetnički paviljon
u Zagrebu
15–31/12/2024

59th zagreb salon
of architecture
and urbanism

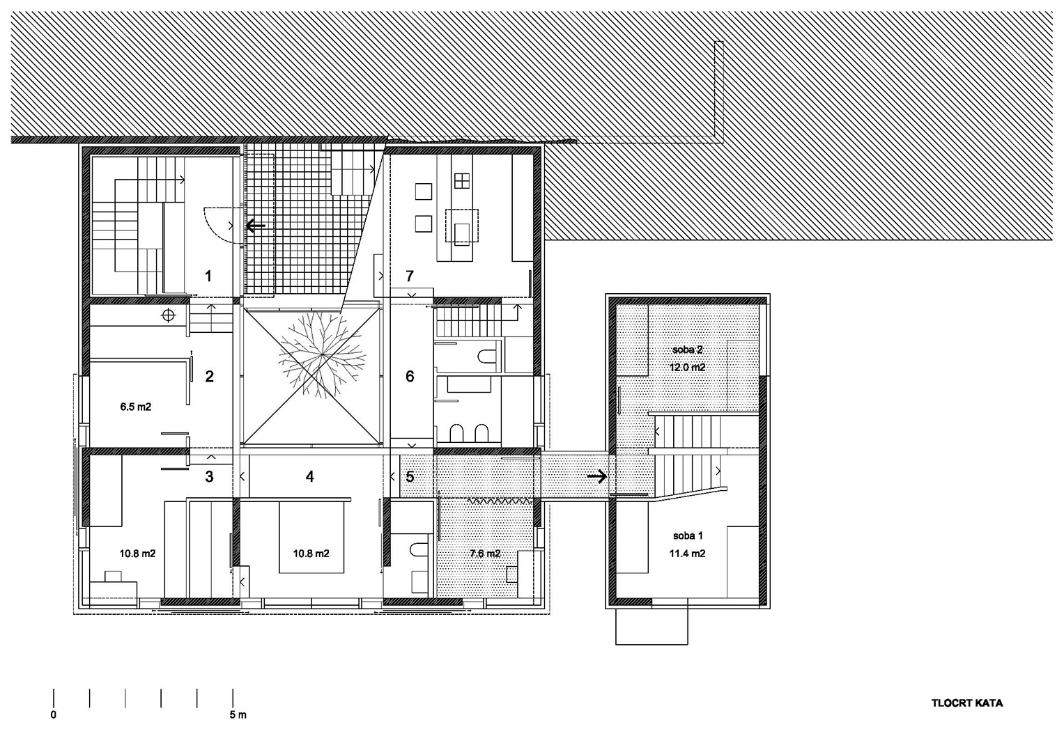
Aneks (dogradnja obiteljske kuće)

Rijeka / 2023. / Petar Mišković

Aneks (dogradnja obiteljske kuće)

O projektu

dijalog sa samim sobom, 10 godina kasnije

Desetak godina nakon useljenja i po rođenju šestog djeteta obiteljsku kuću potrebno je dograditi. Zbog planskih ograničenja dogradnja ne može slijediti princip rasta postojeće kuće. Slobodnostojeći aneks s dodatnim sobama, povezan mostom, može se postaviti s prednje, južne strane kuće ili s jedne od bočnih strana. Varijante: maleni toranj (1 tlocrtni modul), izduljeni volumen sa šed-krovom (2 tlocrtna modula).

O autoru / grupi

Arhitekt i profesor na Arhitektonskom fakultetu u Zagrebu. Diplomirao 2000. Na fakultetu podučava od 2002. U praksi fokusiran na projekte malih i eksperimentalnih građevina te stambenih i društvenih zgrada. Dva puta predstavljao Hrvatsku na Bijenalu arhitekture u Veneciji.

Prikazi

ID rada
694
Mjesto
Rijeka
Godina projekta
2023.
Autor
Petar Mišković
Suradnici
Vanja Rister konzultant
Nikša Laušin vizualizacije
Naručitelj
privatni naručitelj
Svrha nastanka
Naručeni rad