59. zagrebački
salon arhitekture
i urbanizma

dijalozi / monolozi

Umjetnički paviljon
u Zagrebu
15–31/12/2024

59th zagreb salon
of architecture
and urbanism

Donassy otvoreni atelier 01

Zagreb / 2012. / Vanja Ilić

Donassy otvoreni atelier 01

O projektu

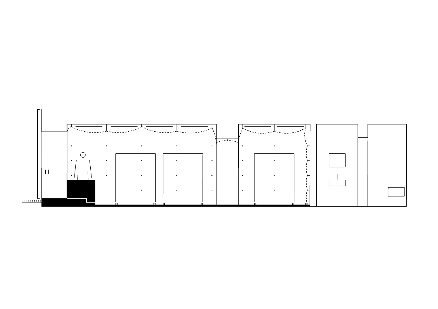
Ulični lokal u historicističkoj građevini transformiran je bez građevinskih zahvata, tako da se u realizaciji preklapaju mediji arhitekture i mode i tehnike realizacije preuzete iz modnog dizajna, spojene u jedinstvenu konceptualnu cjelinu. Primarno sredstvo oblikovanja prostora je elastična translucentna tkanina koja je krojena i sašivena prema couture principima, bez podkonstrukcije, montirana isključivo točkastim sidrenjem. Čitav je prostor odjeven u elastičnu opnu koja je istovremeno i sredstvo oblikovanja i sustav za postizanje difuzne rasvjete.

O autoru / grupi

Autorica je realizacija, natječaja, izložbi i projekata iz područja arhitekture, interijera i javnog prostora. Dobitnica nagrada u zemlji i inozemstvu („Viktor Kovačić“, „Vladimir Nazor“, „Bernardo Bernardi“, Zagrebački salon, priznanje Piranesi itd.). Radi u praksi i nastavi. Vodi ured VIA.

Prikazi

ID rada
757
Mjesto
Zagreb
Godina projekta
2012.
Autor
Vanja Ilić
Ured
VIA
Projektni tim
VIA, Donassy atelier
Naručitelj
Donassy atelier
Svrha nastanka
Naručeni rad