59. zagrebački
salon arhitekture
i urbanizma

dijalozi / monolozi

Umjetnički paviljon
u Zagrebu
15–31/12/2024

59th zagreb salon
of architecture
and urbanism

Donassy otvoreni atelier 02

Zagreb / 2017.-2018. / Vanja Ilić

Donassy otvoreni atelier 02

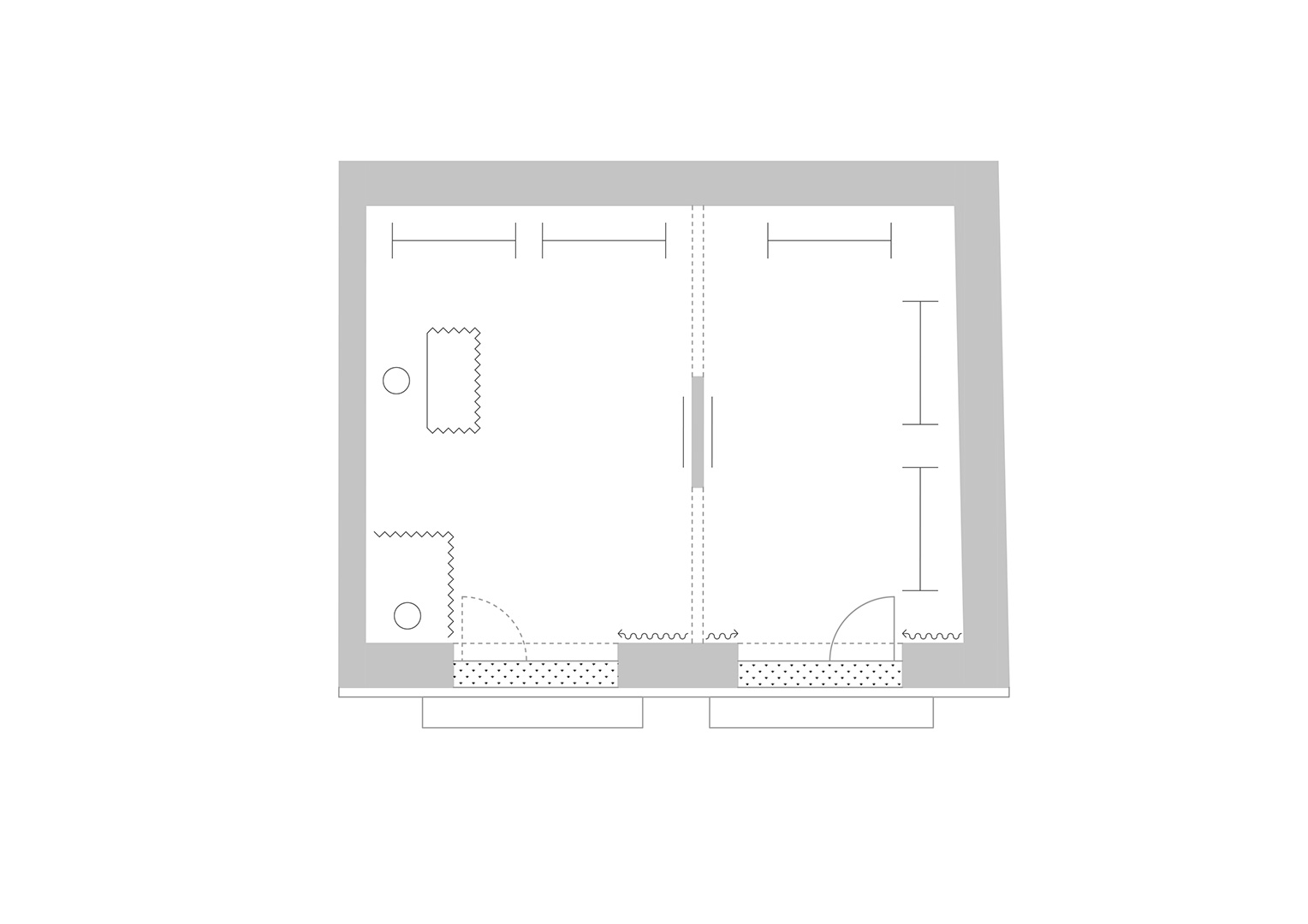
O projektu

Koncept transformira zatečeni prostor za novu namjenu unutar postojećega, a realizacija se oslanja na vlastite produkcijske resurse. Upotrebljivi elementi zadržavaju se u izvornom obliku ili se minimalno transformiraju. Interijerska oprema je izvorni dizajn, s eksperimentiranjem u primjeni materijala, koji su primarno proizvedeni za sasvim drugu namjenu (elastični tekstil za sportsku odjeću, krovna folija – parna brana), na utilitarne prostorne produkte pri čemu se u pristupu projektiranju i realizaciji preklapaju tehnike arhitekture, modnog dizajna i produkt dizajna.

O autoru / grupi

Autorica je realizacija, natječaja, izložbi i projekata iz područja arhitekture, interijera i javnog prostora. Dobitnica nagrada u zemlji i inozemstvu („Viktor Kovačić“, „Vladimir Nazor“, „Bernardo Bernardi“, Zagrebački salon, priznanje Piranesi itd.). Radi u praksi i nastavi. Vodi ured VIA.

Prikazi

ID rada
759
Mjesto
Zagreb
Godina projekta
2017.-2018.
Autor
Vanja Ilić
Ured
VIA
Suradnici
realizacija: Donassy atelier
Svrha nastanka
Naručeni rad