59th zagreb salon
of architecture
and urbanism

Art Pavilion
in Zagreb
15–31/12/2024

59. zagrebački
salon arhitekture
i urbanizma

Inserted Teatrino

Zagreb / 2023./2024. / Paola Kostrenčić / Nikola Toplek

Inserted Teatrino

About project

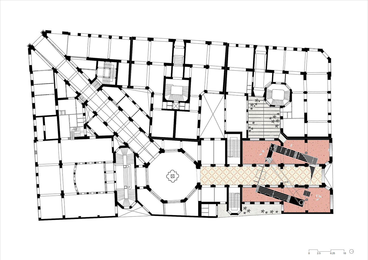
Selected venues are viewed as rooms for the public—interiors accessible to everyone—a non-commercial meeting place. They feature movable elements that anyone can reposition. Some elements serve as stages for street performers, niches for projections, bleachers, worktables, or resting spots, shifting meaning based on arrangement. When connected, they form a teatrino for performances, plays, concerts, and debates. The teatrino redirects movement through the venues and encourages active participation in shaping the space.

About authors

Paola Kostrenčić, born in 1999 in Pula, graduated from the Faculty of Architecture, University of Zagreb, in 2024. Nikola Toplek, born in 2000 in Čakovec, graduated from the Faculty of Architecture, University of Zagreb, in 2024.

Images

Project ID
708
Location
Zagreb
Year
2023./2024.
Author
Paola Kostrenčić / Nikola Toplek
Office
Arhitektonski fakultet Sveučilišta u Zagrebu
Type of project
Student work (classes, workshops, etc.)