59. zagrebački
salon arhitekture
i urbanizma

dijalozi / monolozi

Umjetnički paviljon
u Zagrebu
15–31/12/2024

59th zagreb salon
of architecture
and urbanism

132 aluartforum

Zagreb / 2014. / Hrvoje Njirić / Iskra Filipović

132 aluartforum

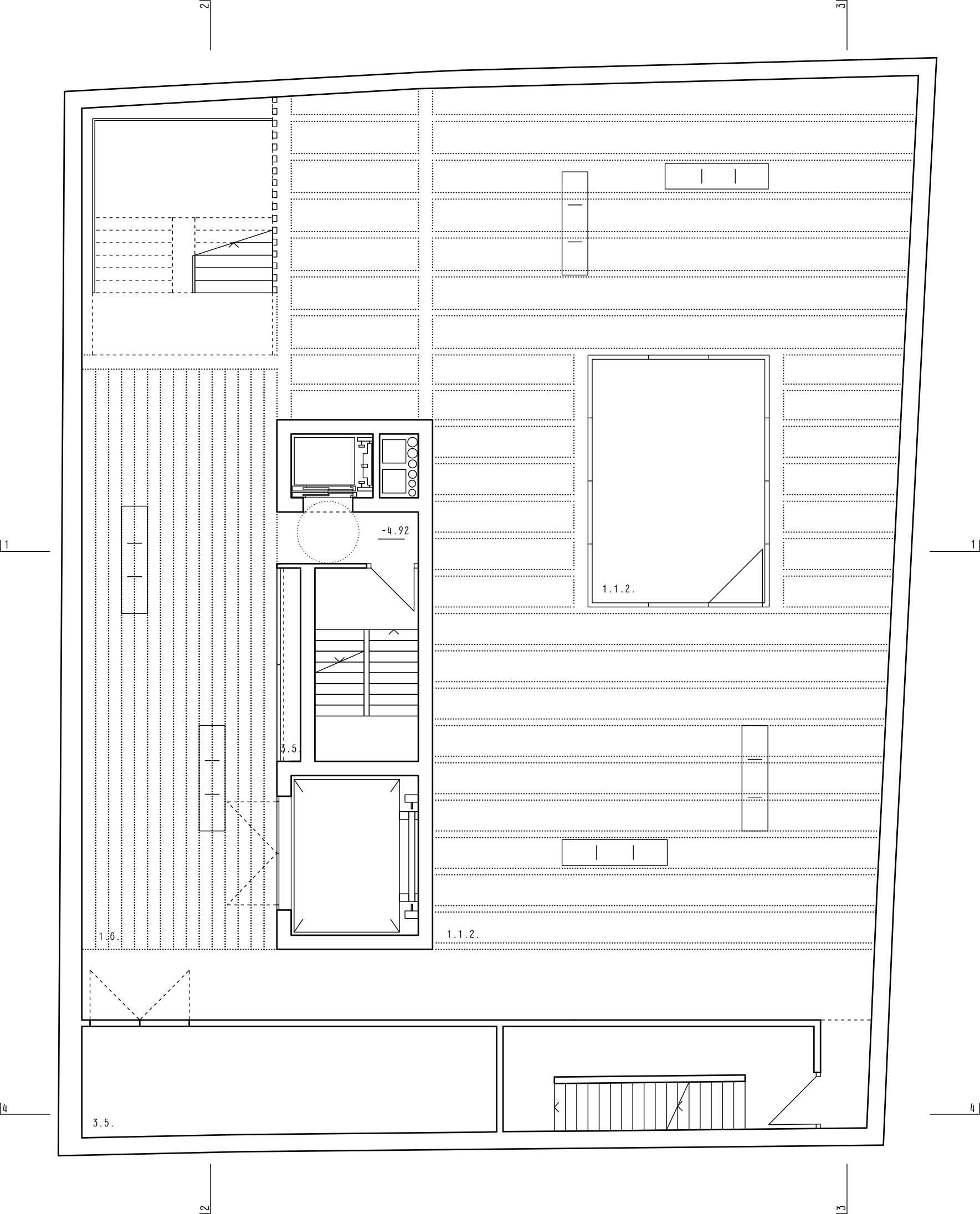
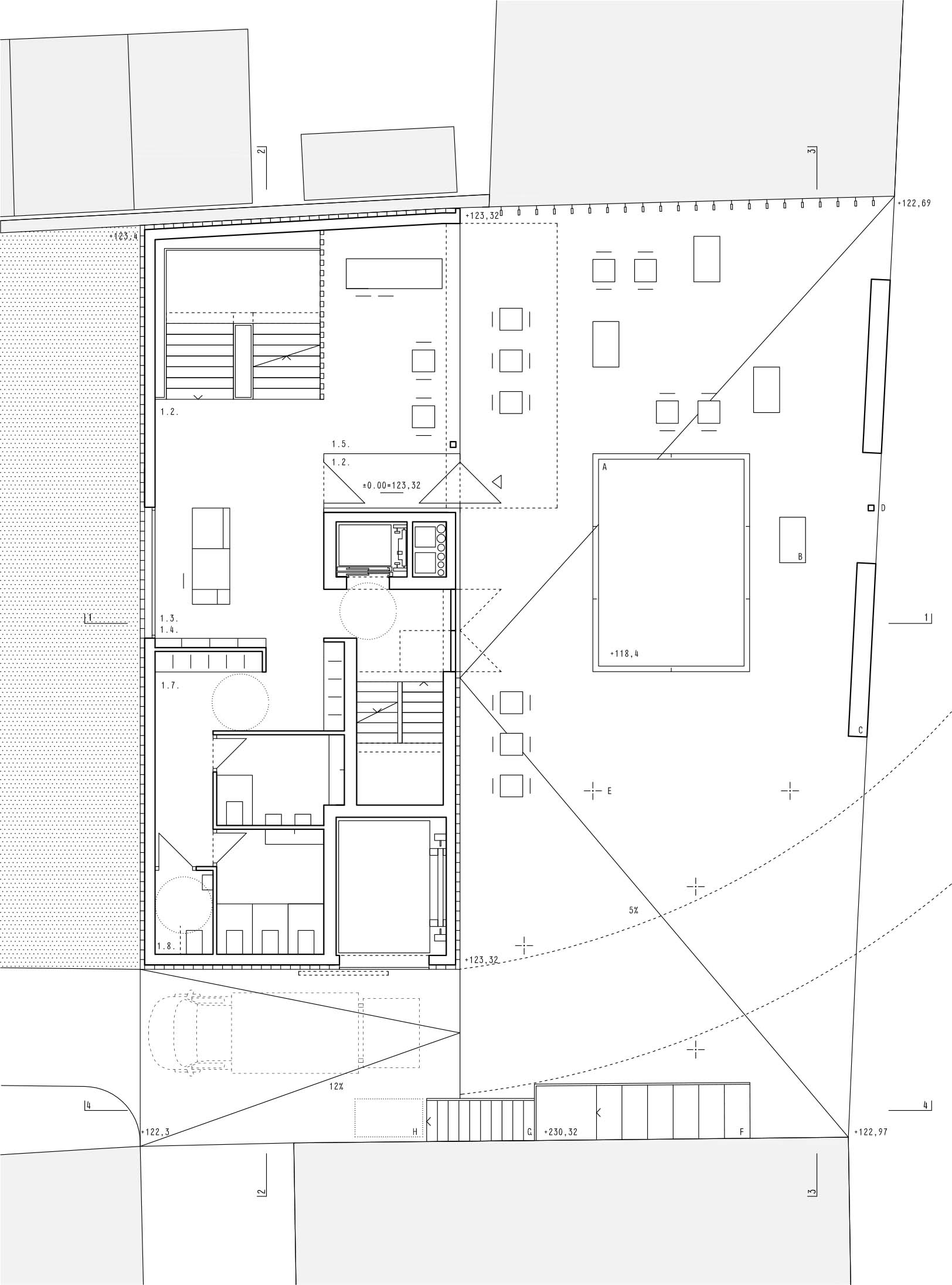
O projektu

Prihvaćanjem teze da je osnovna dužnost kuće prema urbanom kontekstu i javnom prostoru, lako je shvatiti predloženu dvodijelnu kompoziciju – povlačenje zgrade ALU te formiranje trga ispred nje, kao prijelazne zone između ulice i parka.

 

Jasna distinkcija konvencionalnoga i eksperimentalnoga – izložbe manjih formata i stalne kolekcije na višim katovima naspram rawpodzemlja za slobodne forme.

 

Reuse – pojavnošću kuće kao tihoga ciglenog monolita pozornost se skreće na umjetnine, a tek potom na arhitekturu. Tom minimalnom gestom novoizgrađeno se stapa s anonimnim perimetrom bloka.

O autoru / grupi

Ured osniva Hrvoje Njirić 2001., 2019. partnericom postaje suradnica Iskra Filipović, a junior partnericom Irma Šmuc. njiric+ promatra arhitekturu na višem nivou od formalnog skupa građevinskih materijala i njihovih ograničenja. Nefizički aspekti propituju fenomene suvremenog društva i mass kulture.

Prikazi

ID rada
852
Mjesto
Zagreb
Godina projekta
2014.
Autor
Hrvoje Njirić / Iskra Filipović
Ured
njiric+ arhitekti
Naručitelj
Sveučilište u Zagrebu
Svrha nastanka
Natječajni rad