59. zagrebački
salon arhitekture
i urbanizma

dijalozi / monolozi

Umjetnički paviljon
u Zagrebu
15–31/12/2024

59th zagreb salon
of architecture
and urbanism

Lokrumske legende

Zagreb / 2016. / Ivana Dabrović

Lokrumske legende

O projektu

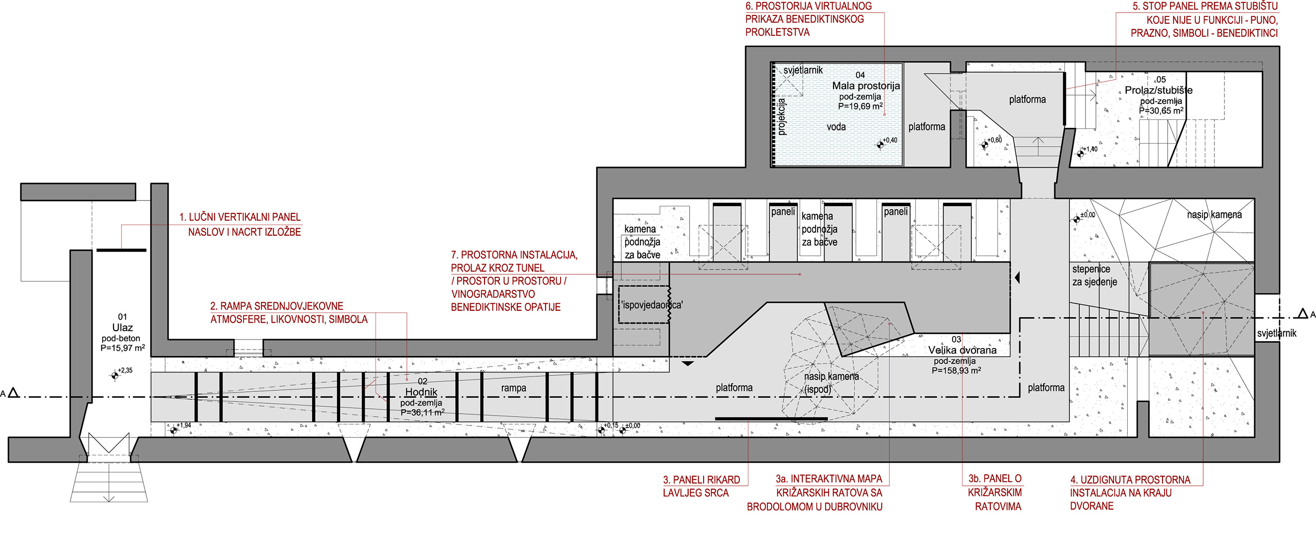
Pop-up izložba Lokrumske legende postavljena je u benediktinskom samostanu u Dubrovniku. Samostan je kulturno dobro i izazov je bio intervenirati u postojeće tkivo s „poniznošću i štovanjem” postavljanjem demontažne 3D instalacije u kamenom nadsvođenom prostoru. Izložba je na demontažnim čeličnim okvirima, sklopljena u pet radnih dana, dovedena brodom i teglenicom iz Zagreba. Amorfna tvorevina asocijativnog oblika Otoka izrađena je od višeslojne šperploče koja se razvija volumenom i isprintanom pričom.

O autoru / grupi

Ivana Dabrović glavna je projektantica u uredima Ecoing i IDIA. Dobitnica je Nagrade „Drago Galić“ 2013. sa 3LHD-om za Vilu V u Dubrovniku. Nominirana je za nagrade The Plan i Archdaily, dobitnica je Natječaja ACI marina te je s projektom Ham Ham u Zagrebu nominirana za nagradu "Bernardo Bernardi".

Prikazi

ID rada
849
Mjesto
Zagreb
Godina projekta
2016.
Autor
Ivana Dabrović
Projektni tim
Maja Tutavac
Suradnici
Ivona Michl
Marko Ambroš
Naručitelj
Rezervat Lokrum, Dubrovnik
Svrha nastanka
Naručeni rad