59. zagrebački
salon arhitekture
i urbanizma

dijalozi / monolozi

Umjetnički paviljon
u Zagrebu
15–31/12/2024

59th zagreb salon
of architecture
and urbanism

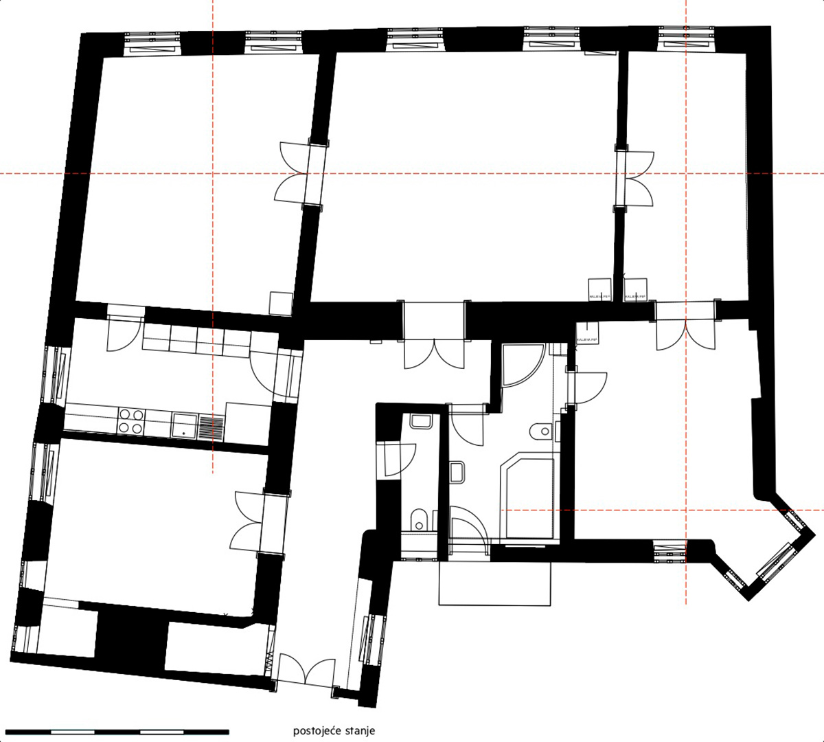
Projekt interijera stana u sklopu zagrebačke gornjogradske kuće Šuflaj

Zagreb / 2016. / Vedrana Ergić

Projekt interijera stana u sklopu zagrebačke gornjogradske kuće Šuflaj

O projektu

Interijer stana u kući s početka 19. stoljeća zaštićenoj kao pojedinačno kulturno dobro suvremena je intervencija u osjetljivi povijesni ambijent. Projektantskim odlukama očuvana je zatečena tipologija s enfiladom, a prostorije su minimalnim intervencijama objedinjene u jedinstvenu zonu preklapanja dnevnih sadržaja. Otvorenom planu suprotstavljen je utilitarni kubus naglašeno oblikovan kao novi element sa zrcalnom ovojnicom. Naglašen odnos restauriranih izvornih oslika zidova i stropova s novim slojevima spaja identitete iz različitih epoha u novu autentičnost.

O autoru / grupi

Vedrana Ergić se u nizu ostvarenja ističe projektima na području arhitekture interijera u kojima integrativnim pristupom istražuje teme transformabilnosti i totalnog dizajna. Nagrade: „Bernardo Bernardi“ 2017. i 2003., nominacija za Nagradu Mies van der Rohe 2019., BIG SEE Award 2020. i dr.

Prikazi

ID rada
816
Mjesto
Zagreb
Godina projekta
2016.
Autor
Vedrana Ergić
Ured
jedanjedan arhitektura
Suradnici
Damir Mance
Alan Braun
Ivan Ljubimir
Andrej Dokić
Vladimir Paun
Pero Sjekavica
Damir Keglević
Svrha nastanka
Naručeni rad