59. zagrebački
salon arhitekture
i urbanizma

dijalozi / monolozi

Umjetnički paviljon
u Zagrebu
15–31/12/2024

59th zagreb salon
of architecture
and urbanism

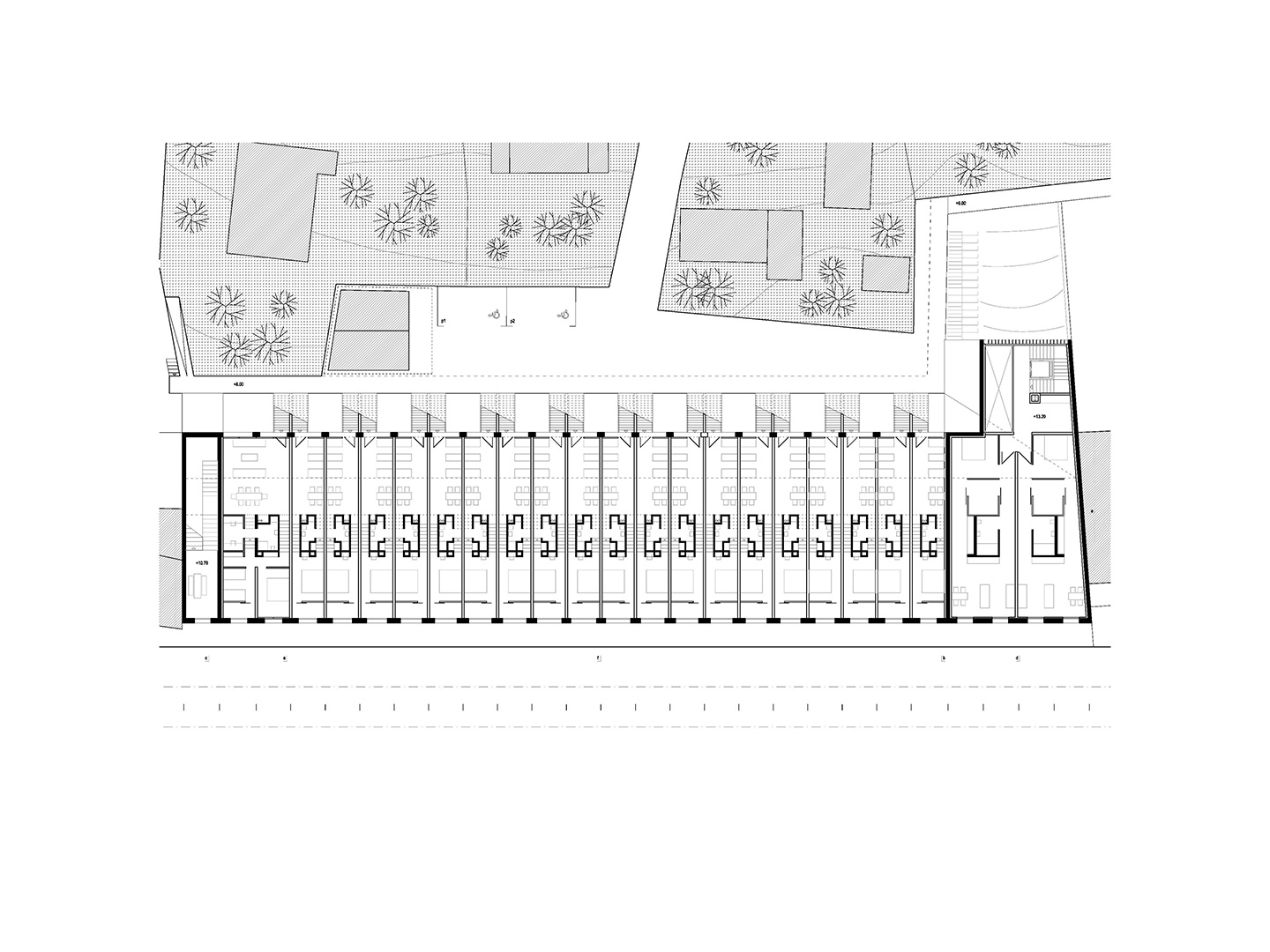
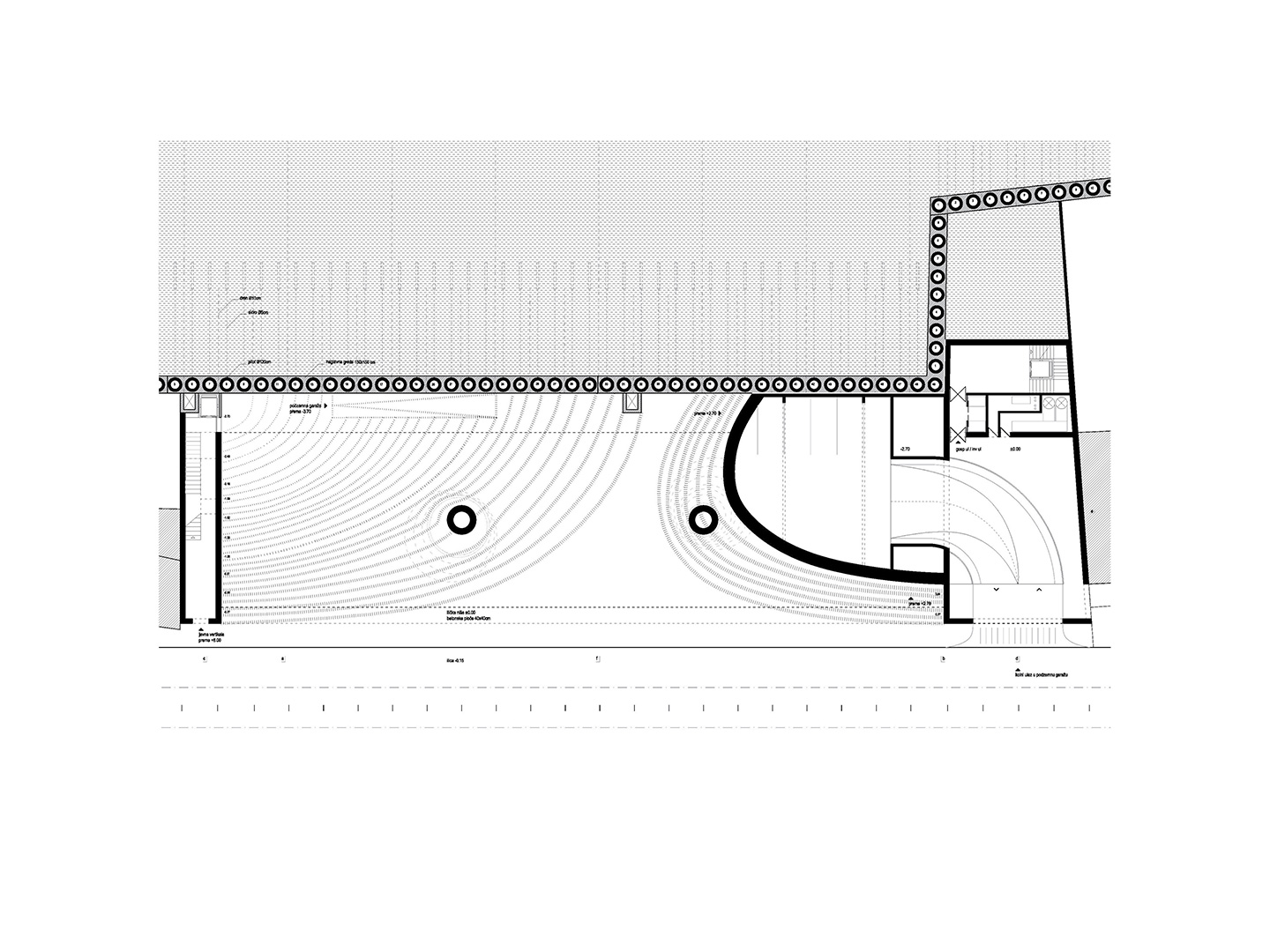
Interpolacija u suburbanom dijelu Ilice u Zagrebu

Zagreb / 2013.-2014. / Iva Martinis

Interpolacija u suburbanom dijelu Ilice u Zagrebu

O projektu

Interpolacija nije samo medij / patch / adapter između onog što je lijevo (malena obiteljska kuća) i onog što je desno (višestambena zgrada); već i onog što je straga (mirno susjedstvo obiteljskih kuća na obroncima) i onog što je sprijeda (prometna gradska ulica); između onog što je ispod (ilička niša) i onog što je iznad (veliki potporni zid); onog što je bilo (obraslo parkiralište podno klizišta Grmoščica) i onog što će tek biti (bazenska dvorana suburbanoga zagrebačkog naselja). Novi bazen interpoliran je između sadržajnih zabata te ulične špilje ispod i stambenog niza iznad.

O autoru / grupi

Iva Martinis ima samostalnu arhitektonsku praksu te povremeno surađuje s kolegama na projektima raznolikih mjerila i namjena. Radi kao predavač na Arhitektonskom fakultetu u Zagrebu. Koautorica je više nagrađenih natječajnih radova od kojih su dva prvonagrađena.

Prikazi

ID rada
741
Mjesto
Zagreb
Godina projekta
2013.-2014.
Autor
Iva Martinis
Suradnici
Nikola Brlek izrada makete
Svrha nastanka
Diplomski rad