59. zagrebački
salon arhitekture
i urbanizma

dijalozi / monolozi

Umjetnički paviljon
u Zagrebu
15–31/12/2024

59th zagreb salon
of architecture
and urbanism

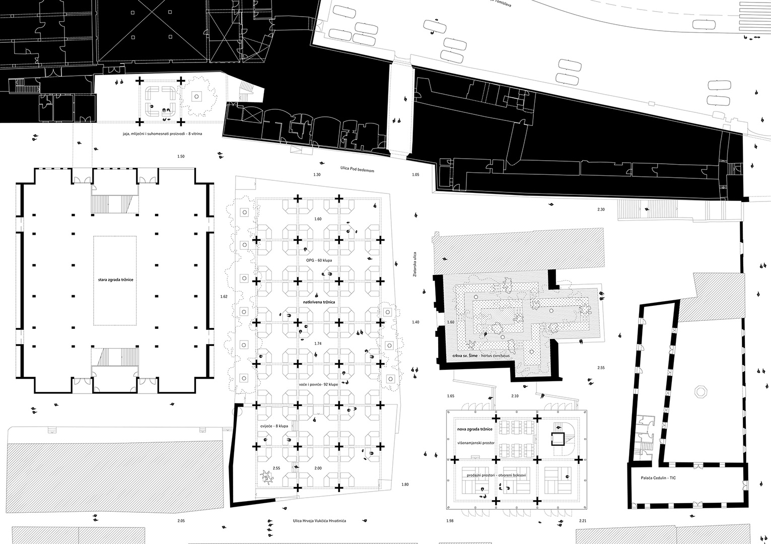
Tržnica

Zadar / 2016. / Petar Mišković

Tržnica

O projektu

Prostor nove gradske tržnice nastaje u odnosu (dijalogu) postojeće topografije i kamenog opločenja platoa i ogradnog zida palače Pasini prema novoj konstrukciji kojom se tržnica natkriva. Niski križni stupovi u pravilnom rasteru i visoka kasetirana konstrukcija krova dijele prostor tržnice na manje dijelove. Donji je rub konstrukcije razmjerno nizak – u tržnicu se ulazi. Kroz nju se prolazi kao kroz kuću s mnogo jednakih soba. Sobe su razmjerno visoke, nadsvođene translucentnim jastucima.

O autoru / grupi

Arhitekt i profesor na Af Sveučilišta u Zagrebu. Diplomirao 2000. godine. Na fakultetu podučava od 2002. godine. U praksi fokusiran na projekte malih i eksperimentalnih građevina te stambenih i društvenih zgrada. Dva puta je predstavljao Hrvatsku na Bijenalu arhitekture u Veneciji.

Prikazi

ID rada
645
Mjesto
Zadar
Godina projekta
2016.
Autor
Petar Mišković
Suradnici
Valentina Krekić
Luka Krstulović
Hrvoje Spudić izrada makete
Svrha nastanka
Natječajni rad