59. zagrebački
salon arhitekture
i urbanizma

dijalozi / monolozi

Umjetnički paviljon
u Zagrebu
15–31/12/2024

59th zagreb salon
of architecture
and urbanism

TIPO – Tehnološko inovacijski inkubator Potpićan

Potpićan, Općina Kršan / 2023. / Alen Žunić / Petra Vlahek

TIPO – Tehnološko inovacijski inkubator Potpićan

O projektu

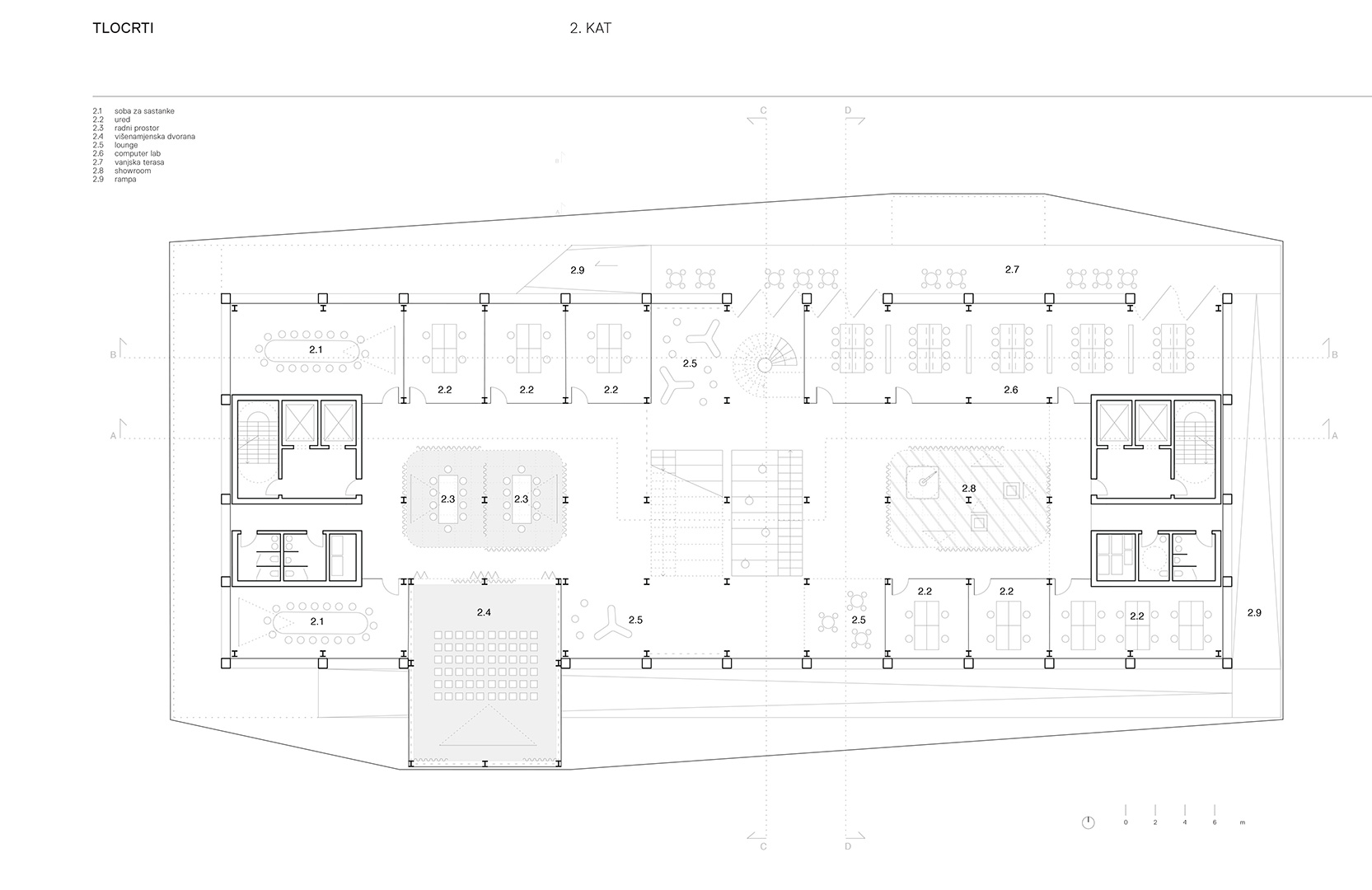
Inkubator u mjestu Potpićan trebao bi se izvesti prenamjenom i rekonstrukcijom postojeće zgrade nekadašnjega industrijskog objekta za separaciju ugljena. Projektiran je „srednji put“ obnove – djelomično očuvanje zatečenoga, uza značajniju adiciju novog sloja za buduće vrijeme i novu funkciju. Zgrada se proteže na 9000 m2, a uza suvremenu fasadu, javnu rampu po perimetru zgrade i zeleni krov, pri vrhu objekta adirana je i višenamjenska dvorana za korisnike inkubatora, ali i za lokalno stanovništvo.

O autoru / grupi

Alen Žunić, docent na AFZG, završio je postdiplomski studij arhitekture na Harvardu i postdoktorsko usavršavanja na ETH Zürich i Columbia; diplomirao je i doktorirao na AFZG. Petra Vlahek diplomirala je (magna cum laude) na AFZG. Sudjeluje u raznim istraživačkim i urbanističko-arhitektonskim projekt

Prikazi

ID rada
642
Mjesto
Potpićan, Općina Kršan
Godina projekta
2023.
Autor
Alen Žunić / Petra Vlahek
Suradnici
Darko Užarević Arhitektonski fakultet, Sveučilište u Zagrebu
Sandro Bogdanović Agronomski fakultet, Sveučilište u Zagrebu
Nedjeljko Špoljar Sensus Design Factory
Florijan Ćelić Ideo Plan
Naručitelj
Općina Kršan
Svrha nastanka
Naručeni rad