59. zagrebački
salon arhitekture
i urbanizma

dijalozi / monolozi

Umjetnički paviljon
u Zagrebu
15–31/12/2024

59th zagreb salon
of architecture
and urbanism

Trg Poljana

Šibenik / 2018. - 2020. / Paula Šimetin / Ivana Tutek / Iva Dubovečak / Izvor Simonović-Majcan

Trg Poljana

O projektu

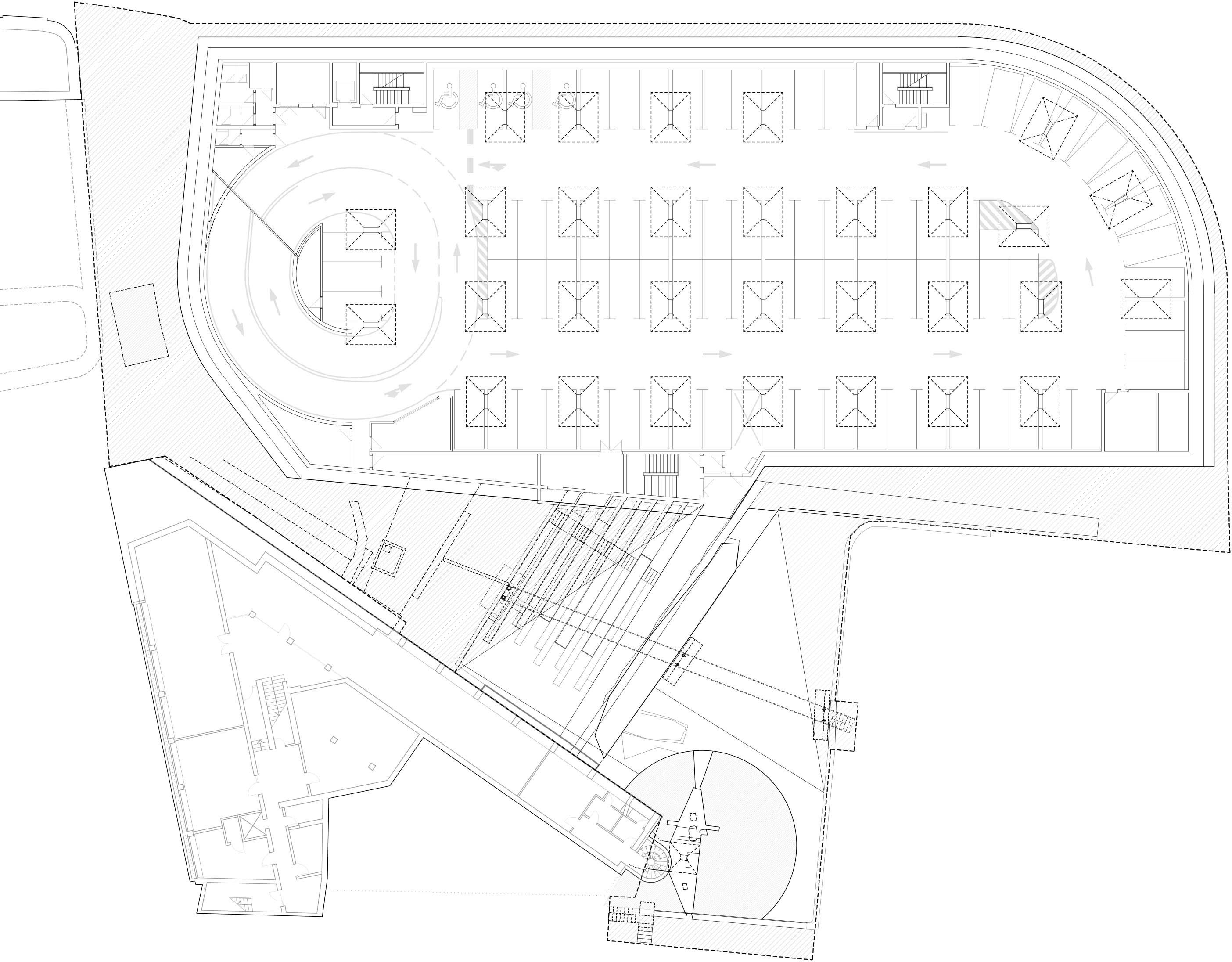
TRG POLJANA projektiran je KAO DIJAGRAM DIJALOGA između prošlosti i budućnosti, apstrakcije i stvarnosti, života i umjetnosti. Uza staru gradsku jezgru Šibenika uređuje se glavni gradski trg, gradi se troetažna podzemna garaža i prezentiraju se arheološki nalazi uza zgradu Knjižnice arhitekta Ivana Vitića. Predložena strategija otvorenog je tipa, uspostavlja dijalog u neodređenom polju suvremenoga grada te uz očuvanje postojećeg identiteta buduće korištenje usmjerava prema novim scenarijima u diskretnoj transformaciji.

O autoru / grupi

Paula Šimetin, dipl. ing. arh., arhitektica / Arhitektonski fakultet, Zagreb; Ivana Tutek, izv. prof. art. dr. sc., arhitektica / Arhitektonski fakultet, Zagreb, Atelier Minerva; Iva Dubovečak, dipl .ing. arh. bavi se arhitekturom i plesom; Izvor Simonović-Majcan, dipl. ing. arh. / STUDIO UP

Prikazi

ID rada
832
Mjesto
Šibenik
Godina projekta
2018. - 2020.
Autor
Paula Šimetin / Ivana Tutek / Iva Dubovečak / Izvor Simonović-Majcan
Ured
Atelier Minerva d.o.o.
Zavod za arhitekturu, Arhitektonski fakultet, Sveučilište u Zagrebu
Projektni tim
Nedjeljka Bobanović Atelier Minerva d.o.o.
Bernarda Lukač Atelier Minerva d.o.o.
Ivana Curić Zavod za arhitekturu, Arhitektonski fakultet, Sveučilište u Zagrebu
Lucija Megla Maketa
Nikola Radeljković Dizajn nadstrešnice: Numen / For Use
Stanislav Habjan Grafički dizajn: petikat - umjetnička radionica
Ksenija Jurčić Diminić Hortikulturno uređenje
Suradnici
Nikola Miletić Konstrukcija nadstrešnice: Kap4 d.o.o.
Josip Galić Konstrukcija: Zavod za zgradarstvo i fiziku zgrada, Af
Mateo Biluš Konstrukcija: Zavod za zgradarstvo i fiziku zgrada, Af
Siniša Staničić Odvodnja i urbana oprema: ACO
Željko Slovinac Dizajn rasvjete: Telektra
Nikola Mijandrušić Kamen Pazin
Ervin Husedžinović Fotografije
Stela Horvat Fotografije makete
Naručitelj
Grad Šibenik
Svrha nastanka
Natječajni rad