59. zagrebački
salon arhitekture
i urbanizma

dijalozi / monolozi

Umjetnički paviljon
u Zagrebu
15–31/12/2024

59th zagreb salon
of architecture
and urbanism

Stvari

/ 2019. / Tajana Levojević

Stvari

O projektu

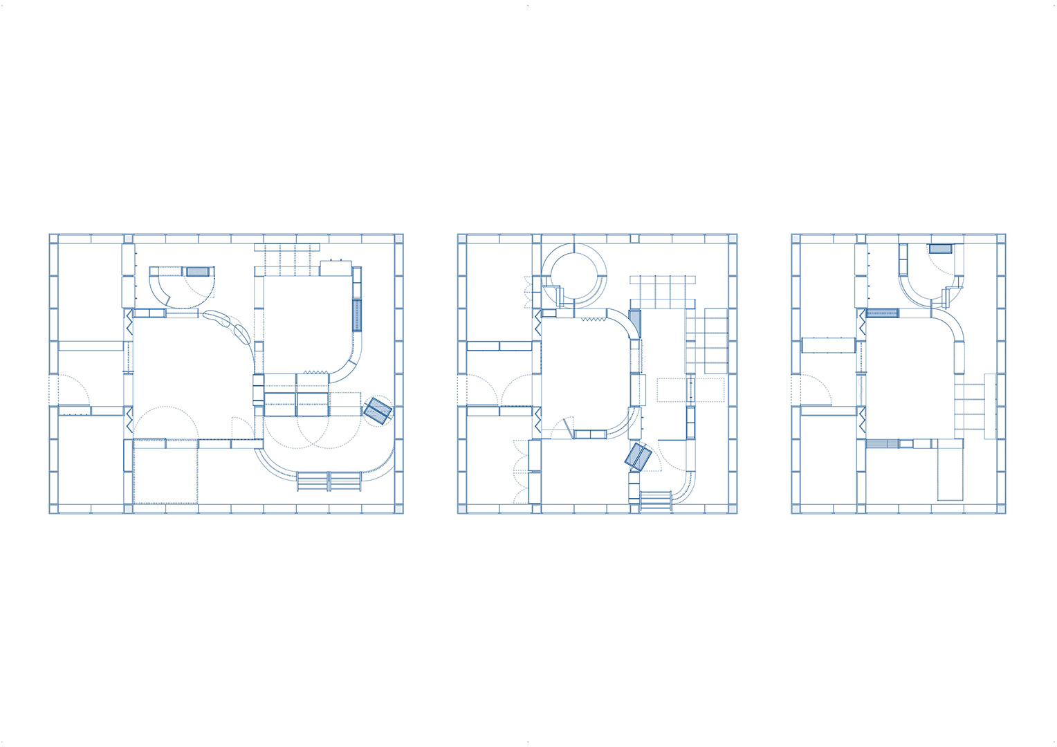
Sobe postaju utisnuti prostori u stanu okruženi stvarima. Umjesto zidova, pojavljuju se okviri koje ovisno o potrebi ili želji punimo sustavima spremišta. Punjenjem elemenata, odnosno akumulacijom stvari, stvaraju se pregrade i stvari počinju dijeliti prostor. Svi okviri su istih dimenzija što omogućuje razmjenu spremišnih sustava koji se umeću i učvršćuju u okvire na razini cijele zgrade. Svaka soba i svaki stan postaju bricolage polica, ormara i sličnih elemenata koji kruže u sustavu zgrade.

O autoru / grupi

Autorica je diplomirala 2021.

Prikazi

ID rada
795
Godina projekta
2019.
Autor
Tajana Levojević
Svrha nastanka
Studentski rad (nastava, radionice i sl.)